Вхід на сайт

Ел. пошта:
Пароль:

Реєстрація на сайті

Призвіще: Область:
Ім'я: Населений пункт:
    По батькові: Номер телефону:
    Ел. пошта: Компанія:
      Пароль: Посада:
      Повторіть пароль: Рік початку роботи:
      Фото:
      З правилами розміщення об'єктів погоджуюсь

      Забули пароль?

      Вкажіть ел. пошту — ми надішлемо Вам новий пароль для входу
      Ел. пошта:

      Проблема на сайті

      Закрити
      Ваш e-mail:
      (необов'язково)
      Розкажіть нам, що сталось
      bcrielt.jpg

      без комісії ул. Театральна, 21 — Продається квартира в новобудові

      (г. Житомир, Королевский район)

      92000 $

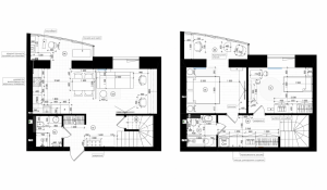
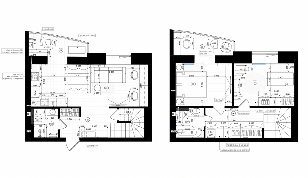
      Загальна площа: 100 кв.м

      Жила площа: 50 кв.м

      Площа кухні: 19 кв.м

      Кімнат: 3

      Поверх: 10

      К-ть поверхів: 11

      Пропонуємо вашій увазі ПРОДАЖ 2-рівневої квартири 100 м² в новому, зданому будинку в престижному районі біля Бульвару в Житомирі.

      Будинок на балансі ОСББ, має закритий двір з автоматичними воротами та парковкою, що забезпечує вам максимальний комфорт та безпеку.

      Квартира готова до втілення ідей ремонту, бонусом є ГОТОВИЙ ДИЗАЙН ПРОЕКТ.

      Квартира має автономне опалення 2х контурний котел, 2 санвузли та 2 великі балкони, що дозволяє вам насолоджуватися прекрасним видом на місто.

      Для інвесторів ця пропозиція є особливо вигідною, оскільки є можливість розділити квартиру на дві окремі для подальшої здачі в оренду або перепродажу.

      Не упустіть шанс стати власником цієї розкішної квартири, яка поєднує в собі комфорт, стиль та вигідну інвестицію.

      ЕКСКЛЮЗИВНА ПРОПОЗИЦІЯ!

      Надіслати скаргу

      Закрити
      Поскаржитися на об'єкт «ул. Театральна, 21 (г. Житомир, Королевский район)»
      Ваш коментар:(Необов'язково)
      Ваша скарга буде надіслана ріелтору, що розмістив об'єкт, а також адміністрації сайту АФНУ.
      Ваше ім'я:
      (Обов'язково)
      Ваш e-mail для відповіді:
      (Обов'язково)

      Вам также могут подойти

      ул. Вітрука, 6-б (г. Житомир, Королевский район) - Продається квартира, 93000 $ - АФНУ

      Оновлено: 17 грудня

      Розміщено: 9 квітня

      Продається квартира

      2 кімн., площа 56/34/14, поверх 8/10

      г. Житомир, ул. Вітрука, 6-б

      93000 $

      Вітюк Андрій Петрович

      Засновник (EXCLUSIVE)

      Продаж ЄВРОДВУШКИ з ремонтом у ЖК "Фаворит" м. Житомир

      Пропонуємо сучасну квартиру у комфортному житловому комплексі "Фаворит", розташованому в зручному районі Житомира.

      Локація: ЖК Фаворит, м. Житомир
      Поверх: 8 із…

      Детальніше

      ул. Театральна, 21 (г. Житомир, Богунский район) - Продається квартира, 85000 $ - АФНУ

      Оновлено: 17 грудня

      Розміщено: 3 травня 2024

      Продається квартира

      2 кімн., площа 92/48/18, поверх 2/11

      г. Житомир, ул. Театральна, 21

      85000 $

      Вітюк Андрій Петрович

      Засновник (EXCLUSIVE)

      Продається 2-кімнатна квартира 90 м2 в новому будинку ЖК Театральний.
      - центр міста;
      - всі будівельні роботи зроблені!
      - автономне опалення, 2-х контурний казан;
      - квартира має 2 окремі кімнати;…

      Детальніше

      ул. Домбровського, 3в (г. Житомир, Богунский район) - Продається квартира, 80000 $ - АФНУ

      Оновлено: 17 грудня

      Розміщено: 8 листопада 2024

      Продається квартира

      1 кімн., площа 45/18/16, поверх 2/10

      г. Житомир, ул. Домбровського, 3в

      80000 $

      Вітюк Андрій Петрович

      Засновник (EXCLUSIVE)

      Продаж неймовірної квартири в ЖК Домбровський.
      Знаходиться на зручному, другому поверсі.
      Секція здана в експлуатацію в 2022 році.
      Більшість сусідів вже зробили ремонти.

      В квартирі зроблено ремонт з дорогих та…

      Детальніше

      Коментарі