Вхід на сайт

Ел. пошта:
Пароль:

Реєстрація на сайті

Призвіще: Область:
Ім'я: Населений пункт:
    По батькові: Номер телефону:
    Ел. пошта: Компанія:
      Пароль: Посада:
      Повторіть пароль: Рік початку роботи:
      Фото:
      З правилами розміщення об'єктів погоджуюсь

      Забули пароль?

      Вкажіть ел. пошту — ми надішлемо Вам новий пароль для входу
      Ел. пошта:

      Проблема на сайті

      Закрити
      Ваш e-mail:
      (необов'язково)
      Розкажіть нам, що сталось
      bcrielt.jpg

      Поза населеним пунктом — Продається промисловість

      (с. Береговое, Новоград-Волынский район)

      25000 $

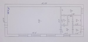
      Загальна площа: 620 кв.м

      К-ть поверхів: 1

      Продаємо 2 цегляних виробничих приміщення 620м*, діючий цех з переробки лісу з пилорамою стрічковою та верстатами. Є 2 тельфери та кран піонер. Земля приватизована 1.3 га. Об'єкт знаходиться у Новоград-Волинському районі. Поруч знаходиться річка, біля території об'єкту є ставки. Сам об'єкт розташований біля п'яти лісництв.
      Вартість 25.000$
      Пропозиція від агенції нерухомості
      097.264.32.48
      093.426.46.50
      Леся Кривчук

      Надіслати скаргу

      Закрити
      Поскаржитися на об'єкт «Поза населеним пунктом (с. Береговое, Новоград-Волынский район)»
      Ваш коментар:(Необов'язково)
      Ваша скарга буде надіслана ріелтору, що розмістив об'єкт, а також адміністрації сайту АФНУ.
      Ваше ім'я:
      (Обов'язково)
      Ваш e-mail для відповіді:
      (Обов'язково)

      Коментарі