Вхід на сайт

Ел. пошта:
Пароль:

Реєстрація на сайті

Призвіще: Область:
Ім'я: Населений пункт:
    По батькові: Номер телефону:
    Ел. пошта: Компанія:
      Пароль: Посада:
      Повторіть пароль: Рік початку роботи:
      Фото:
      З правилами розміщення об'єктів погоджуюсь

      Забули пароль?

      Вкажіть ел. пошту — ми надішлемо Вам новий пароль для входу
      Ел. пошта:

      Проблема на сайті

      Закрити
      Ваш e-mail:
      (необов'язково)
      Розкажіть нам, що сталось
      bcrielt.jpg

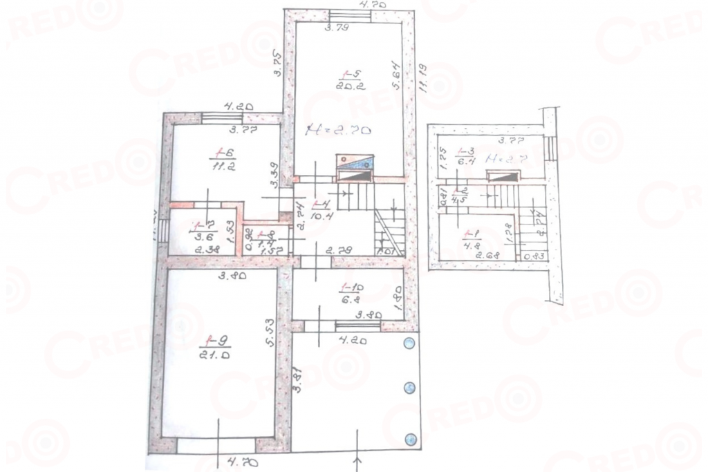
      с. Лозоватка — Продається будинок

      (г. Кривой Рог)

      21500 $

      Загальна площа: 160 кв.м

      Площа ділянки: 19 сот

      Кімнат: 4

      К-ть поверхів: 2

      Продаж домоволодіння, 160, 3 кв.м., 19 соток, село Лозуватка вул. Центрально - Міська

      Пропонуємо будинок відмінного планування в маленькому котеджному містечку в 20 хв. від міста.
      Побудований 1995 року.

      Про домовлодіння:
      - Загальна площа 160, 3 кв.м.
      - Земельна ділянка 19 соток
      - Гараж

      Планування будинку:
      - 2-х поверховий будинок
      - 4 окремі кімнати

      Комунікації:
      - Електроенергія 380V
      - Каналізація - септик, дві окремі ями
      - Водопостачання центральне
      - Розведення труб під теплу підлогу по всьому будинку
      - Опалення планувалось водяне і електричне

      Локація:
      Будинок знаходиться по широкій та асфальтованій вулиці в 20-ти хв. від міста. Поруч доброзичливі сусіди. Вихід до річки до 1км.

      Матеріал побудови
      - Фундамент - бетонні блоки, стіни шлаколиті, обкладені цеглою

      Сад:
      - Домашній сад
      - Город

      За будь-якими питаннями за цією або схожими пропозиціями звертайтесь за номером телефону, де вам відповість наш ріелтор Наталія - 067 696 16 51

      Підписуйтесь на наш Instagram та слідкуйте за оновленнями - @ancredokr
      З повагою, команда Credo!

      Надіслати скаргу

      Закрити
      Поскаржитися на об'єкт «с. Лозоватка (г. Кривой Рог)»
      Ваш коментар:(Необов'язково)
      Ваша скарга буде надіслана ріелтору, що розмістив об'єкт, а також адміністрації сайту АФНУ.
      Ваше ім'я:
      (Обов'язково)
      Ваш e-mail для відповіді:
      (Обов'язково)

      Вам также могут подойти

      ул. Невельская (г. Кривой Рог, Долгинцевский район) - Продається будинок, 25000 $ - АФНУ

      Оновлено: 8 січня

      Розміщено: 8 травня 2025

      Продається будинок

      г. Кривой Рог, ул. Невельская

      25000 $

      Літвинова Ірина Вікторівна

      Продаж будинку, р-н "Ласточка"
      Вул. Добра (Невельська).

      Невеликий район приватного сектору.

      Про об'єкт:
      - загальна площа будинку 55,2 м.кв.
      - житлова площа 33,4 м.кв.
      - господарчі будівлі.
      - літня кухня.…

      Детальніше

      ул. Запорожская (г. Кривой Рог, Центрально-Городской район) - Продається будинок, 18000 $ - АФНУ

      Оновлено: вчора

      Розміщено: 12 травня 2025

      Продається будинок

      г. Кривой Рог, ул. Запорожская

      18000 $

      Літвинова Ірина Вікторівна

      Пропонуємо продаж 2-х поверхового будинок у Центрально-міському районі, вул. Запорізька (р-н Смички)

      Про будинок:
      - заг.пл. 358.9 кв.м.
      - житлова 225.5 кв.м.
      - висота стін - 2.95м
      - гараж 29.2…

      Детальніше

      ул. Упита (г. Кривой Рог, Саксаганский район) - Продається будинок, 22000 $ - АФНУ

      Оновлено: 11 грудня 2025

      Розміщено: 1 липня 2025

      Продається будинок

      г. Кривой Рог, ул. Упита

      22000 $

      Літвинова Ірина Вікторівна

      Пропонуємо до продажу повноцінне домоволодіння
      у географічному центрі міста, Саксаганський р-н,
      вул.Творча (раніше Упіта), 62. 1/4 будинку.
      Зручний вихід до вулиць Філатова і Льотчиків.
      Достатьно велика земельна ділянка 7 соток.…

      Детальніше

      Коментарі