Вхід на сайт

Ел. пошта:
Пароль:

Реєстрація на сайті

Призвіще: Область:
Ім'я: Населений пункт:
    По батькові: Номер телефону:
    Ел. пошта: Компанія:
      Пароль: Посада:
      Повторіть пароль: Рік початку роботи:
      Фото:
      З правилами розміщення об'єктів погоджуюсь

      Забули пароль?

      Вкажіть ел. пошту — ми надішлемо Вам новий пароль для входу
      Ел. пошта:

      Проблема на сайті

      Закрити
      Ваш e-mail:
      (необов'язково)
      Розкажіть нам, що сталось
      bcrielt.jpg

      без комісії ул. Гордиюк, 37 — Продається торгівельний майданчик

      (г. Луцк)

      1300000 $

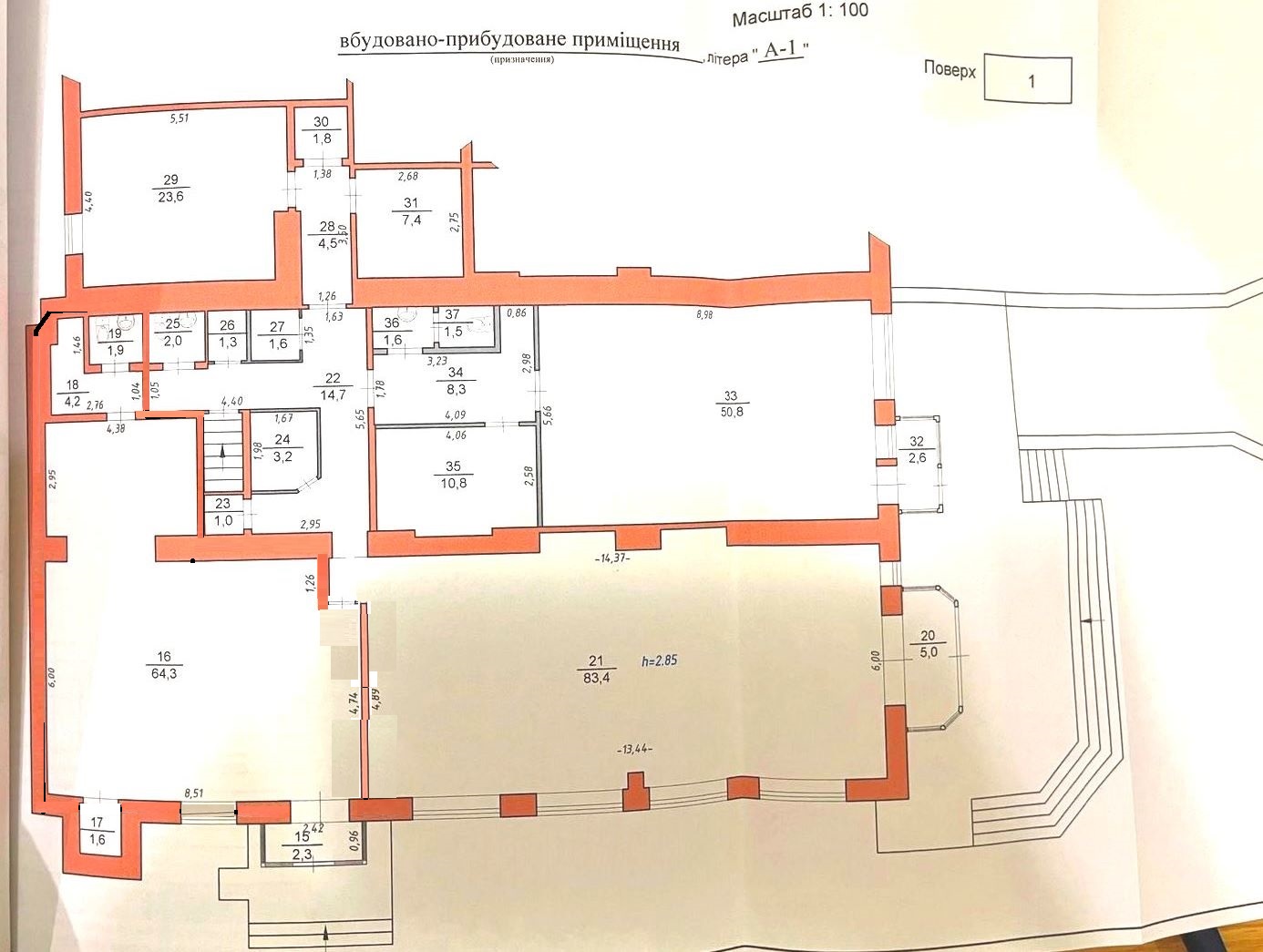
      Загальна площа: 538 кв.м

      Поверх: 1

      К-ть поверхів: 1

      Продам приміщення 538,3 кв.м. в центрі 40 кварталу (Гордіюк, 37)!

      Характеристики:
      • 1-ий поверх складається з трьох автономних приміщень, загальною площею 299,4 кв.м.
      • Підвал - 238,9 кв.м.,
      • Великі фасадні вітрини,
      • Автономне газаве опалення,
      • 4 автономні приміщення, які функціонують незалежно!
      • Ремонт,
      • Охоронна та пожежна сигналізація,
      • Вентиляція,
      • Власна парковка,
      • Пожежний вихід.

      Придбавши даний об'єкт Ви отримаєте:
      * вже здане в оренду приміщення, але генерує стабільний дохід
      * приміщення в самому центрі "40 кварталу" м. Луцька
      * об'єкт з чітко вираженою вхідною фасадною групою
      * не високі комунальні затрати за рахунок автономного опалення
      * завжди бажане місце для потенційних орендарів
      * приміщення з відмінним ремонтом, що не потребує додаткових капіталовкладень
      * допомога при заселенні "правильним" орендарем

      Інвестуй правильно - купуй ліквідний об'єкт!

      Вартість - 1300000 у.о. Без комісії!

      Менеджер даного об’єкту – Іванна Абрамович
      тел. моб. +38 0503413382
      +38 067 67 24856

      Надіслати скаргу

      Закрити
      Поскаржитися на об'єкт «ул. Гордиюк, 37 (г. Луцк)»
      Ваш коментар:(Необов'язково)
      Ваша скарга буде надіслана ріелтору, що розмістив об'єкт, а також адміністрації сайту АФНУ.
      Ваше ім'я:
      (Обов'язково)
      Ваш e-mail для відповіді:
      (Обов'язково)

      Коментарі