Вхід на сайт

Ел. пошта:
Пароль:

Реєстрація на сайті

Призвіще: Область:
Ім'я: Населений пункт:
    По батькові: Номер телефону:
    Ел. пошта: Компанія:
      Пароль: Посада:
      Повторіть пароль: Рік початку роботи:
      Фото:
      З правилами розміщення об'єктів погоджуюсь

      Забули пароль?

      Вкажіть ел. пошту — ми надішлемо Вам новий пароль для входу
      Ел. пошта:

      Проблема на сайті

      Закрити
      Ваш e-mail:
      (необов'язково)
      Розкажіть нам, що сталось
      bcrielt.jpg

      без комісії Центральна, 100 — Продається будинок

      (с. Вишеньки, Бориспольский район)

      125000 $

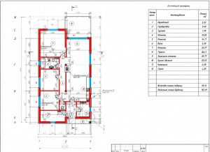
      Загальна площа: 152 кв.м

      Площа ділянки: 18 сот

      Кімнат: 5

      К-ть поверхів: 1

      Современный дом в один этаж, на участке 18 соток со своим выходом на Днепр. 1 км от кот.поселков Золоче.
      Два выезда на Киев.
      Коттеджный поселок на 45-50 домов, соседи проживают круглогодично
      До фарватера Днепра - 5 мин.
      Участок: 9 соток - в собственность, 9 соток - аренда на 49 лет.
      Участок огражден забором, сделаны ФЕМ дорожки, откатные ворота.
      Дом - 152 кв.м.
      На железобетонной "подушке" (сделаны геодезия" и просчеты грунтов, под землей фундамент утеплен стиродуром.
      Стены газоблок - 350 мм., утеплен минватой. Сделана декоративная отделка под дерево.
      Заведены коммуникации: свет 12- кВт, с возможностью увеличения, канализация - септик с переливом 8 куб., вода - скважина 65 метров.

      Внутри черновая отделка, залиты полы, сделана разводка электрики.
      Три спальни, два санузла, большая гостинная-кухня с террасой и видом на Днепр.

      Надіслати скаргу

      Закрити
      Поскаржитися на об'єкт «Центральна, 100 (с. Вишеньки, Бориспольский район)»
      Ваш коментар:(Необов'язково)
      Ваша скарга буде надіслана ріелтору, що розмістив об'єкт, а також адміністрації сайту АФНУ.
      Ваше ім'я:
      (Обов'язково)
      Ваш e-mail для відповіді:
      (Обов'язково)

      Коментарі