Вхід на сайт

Ел. пошта:
Пароль:

Реєстрація на сайті

Призвіще: Область:
Ім'я: Населений пункт:
    По батькові: Номер телефону:
    Ел. пошта: Компанія:
      Пароль: Посада:
      Повторіть пароль: Рік початку роботи:
      Фото:
      З правилами розміщення об'єктів погоджуюсь

      Забули пароль?

      Вкажіть ел. пошту — ми надішлемо Вам новий пароль для входу
      Ел. пошта:

      Проблема на сайті

      Закрити
      Ваш e-mail:
      (необов'язково)
      Розкажіть нам, що сталось
      bcrielt.jpg

      пер. Шевченковский, 48/14 — Продається квартира в новобудові

      (г. Харьков, Киевский район)

      26700 $

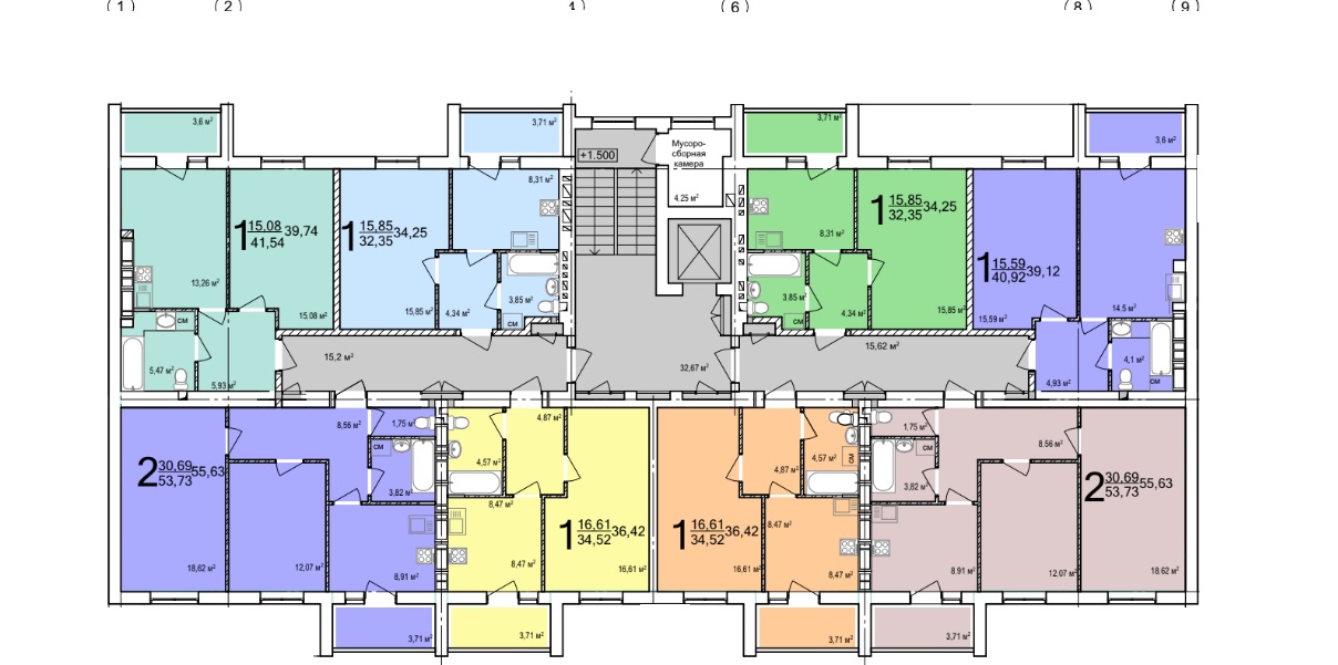
      Загальна площа: 37 кв.м

      Жила площа: 17 кв.м

      Площа кухні: 9 кв.м

      Кімнат: 1

      Поверх: 4

      К-ть поверхів: 9

      Продаю однокомнатную квартиру, общей площадью S* 36,82 m2 новострое самого надёжного Харьковского застройщика Треста Жилстрой-1, ЖК Птичка, по строительному адрес переулок Шеченковский 48 дом 14 секция В. Квартира находится на четвёртом этаже, девятиэтажного дома с наружным утеплением стен. Сдача дома в декабре 2021 года, к ремонту можно приступать в апреле 2022 года. В квартире установлены металлическая дверь, метало-пластиковые окна, горизонтальная разводка отопления с установкой радиаторов (есть возможность установки индивидуального счётчика на тепло), счётчик электроэнергии, внутриквартирные перегородки. Новый ЖК находится неподалёку от рынка Барабашово. Наличие рядом парка и речки, создает все условия для комфортной и счастливой жизни. Чистая природа в условиях урбанистической зоны будет ежедневно дарить только оптимистические эмоции. В комплексе предусмотрено облагораживание придомовой территории, оборудованные детские площадки, комфортные зоны отдыха и занятий спортом, строительство многоэтажного паркинга, а также выделенная парковочная зона для гостей на придомовой территории. До станции метро "Академика Павлова" - 15 минут пешком. Оформление проходит в офисе треста Жилстрой-1. Звонки и заявки на просмотры квартир принимаются ежедневно с 9.00 до 19.00. Больше на https://www.facebook.com/gilstroynovostroy

      Озеров Александр

      Озеров Александр Александрович

      заместитель директора департамента первичной недвижимости (КРОНА Производственно-правовая фирма)

      +380 (50) 135-35... Показати номер телефона +380 (50) 135-35-07

      Поскаржитися на об'єкт

      Надіслати скаргу

      Закрити
      Поскаржитися на об'єкт «пер. Шевченковский, 48/14 (г. Харьков, Киевский район)»
      Ваш коментар:(Необов'язково)
      Ваша скарга буде надіслана ріелтору, що розмістив об'єкт, а також адміністрації сайту АФНУ.
      Ваше ім'я:
      (Обов'язково)
      Ваш e-mail для відповіді:
      (Обов'язково)

      Коментарі