Вхід на сайт

Ел. пошта:
Пароль:

Реєстрація на сайті

Призвіще: Область:
Ім'я: Населений пункт:
    По батькові: Номер телефону:
    Ел. пошта: Компанія:
      Пароль: Посада:
      Повторіть пароль: Рік початку роботи:
      Фото:
      З правилами розміщення об'єктів погоджуюсь

      Забули пароль?

      Вкажіть ел. пошту — ми надішлемо Вам новий пароль для входу
      Ел. пошта:

      Проблема на сайті

      Закрити
      Ваш e-mail:
      (необов'язково)
      Розкажіть нам, що сталось
      bcrielt.jpg

      без комісії ул. Урицкого, 38 — Продається квартира в новобудові

      (г. Киев, Соломенский район)

      380000 $

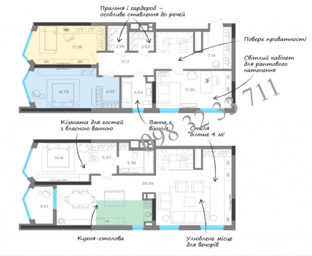
      Загальна площа: 181 кв.м

      Жила площа: 100 кв.м

      Площа кухні: 56 кв.м

      Кімнат: 3

      Поверх: 24

      К-ть поверхів: 25

      Без комиссии продам видовую двухуровневую квартиру в новом современном ЖК Тайм (Time) на Липковского. Квартира с продуманной планировкой, состоит из 4 спален, гостиной, большой кухни, 2 санузлов. Высота потолков 3,2 - 5,5 метров.

      Квартира двусторонняя, полностью видовая. Панорамные алюминиевые окна. Качественная стяжка.

      Монолитно-каркасный дом, стены из красного кирпича. Дом класса комфорт+ с собственной закрытой территорией без машин. Подземный паркинг в 2 уровня. На территории ЖК предусмотрена парковая зона, своя инфраструктура, детский садик. До метро Вокзальная 20 минут пешком. Документы на руках.
      ДУБЛИРОВАТЬ ЗАПРЕЩЕНО!

      Надіслати скаргу

      Закрити
      Поскаржитися на об'єкт «ул. Урицкого, 38 (г. Киев, Соломенский район)»
      Ваш коментар:(Необов'язково)
      Ваша скарга буде надіслана ріелтору, що розмістив об'єкт, а також адміністрації сайту АФНУ.
      Ваше ім'я:
      (Обов'язково)
      Ваш e-mail для відповіді:
      (Обов'язково)

      Коментарі