Вхід на сайт

Ел. пошта:
Пароль:

Реєстрація на сайті

Призвіще: Область:
Ім'я: Населений пункт:
    По батькові: Номер телефону:
    Ел. пошта: Компанія:
      Пароль: Посада:
      Повторіть пароль: Рік початку роботи:
      Фото:
      З правилами розміщення об'єктів погоджуюсь

      Забули пароль?

      Вкажіть ел. пошту — ми надішлемо Вам новий пароль для входу
      Ел. пошта:

      Проблема на сайті

      Закрити
      Ваш e-mail:
      (необов'язково)
      Розкажіть нам, що сталось
      bcrielt.jpg

      без комісії ул. Радистов, 54 — Продається склад

      (г. Запорожье, Шевченковский район)

      200000 $

      Загальна площа: 1000 кв.м

      К-ть поверхів: 3

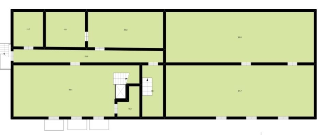
      Продажа, аптечный склад ул. Радистов, 54
      Два этажа и подвал, общая площадь 1000 кв.м. Подвал: производство и склады. Первый этаж - склады. Второй этаж - офисы. Здание в отличном состоянии, есть рампа, производственный лифт, стеллажи, офисная мебель, электрическая мощность 150кВт.
      Земельный участок 11,65 соток в аренде до 2034 года.
      Звоните, договоримся о просмотре!

      Надіслати скаргу

      Закрити
      Поскаржитися на об'єкт «ул. Радистов, 54 (г. Запорожье, Шевченковский район)»
      Ваш коментар:(Необов'язково)
      Ваша скарга буде надіслана ріелтору, що розмістив об'єкт, а також адміністрації сайту АФНУ.
      Ваше ім'я:
      (Обов'язково)
      Ваш e-mail для відповіді:
      (Обов'язково)

      Коментарі