Вхід на сайт

Ел. пошта:
Пароль:

Реєстрація на сайті

Призвіще: Область:
Ім'я: Населений пункт:
    По батькові: Номер телефону:
    Ел. пошта: Компанія:
      Пароль: Посада:
      Повторіть пароль: Рік початку роботи:
      Фото:
      З правилами розміщення об'єктів погоджуюсь

      Забули пароль?

      Вкажіть ел. пошту — ми надішлемо Вам новий пароль для входу
      Ел. пошта:

      Проблема на сайті

      Закрити
      Ваш e-mail:
      (необов'язково)
      Розкажіть нам, що сталось
      bcrielt.jpg

      ул. Молочная, 56 — Продається офіс

      (г. Харьков, Червонозаводский район)

      1200 $ за кв.м.

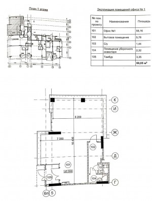
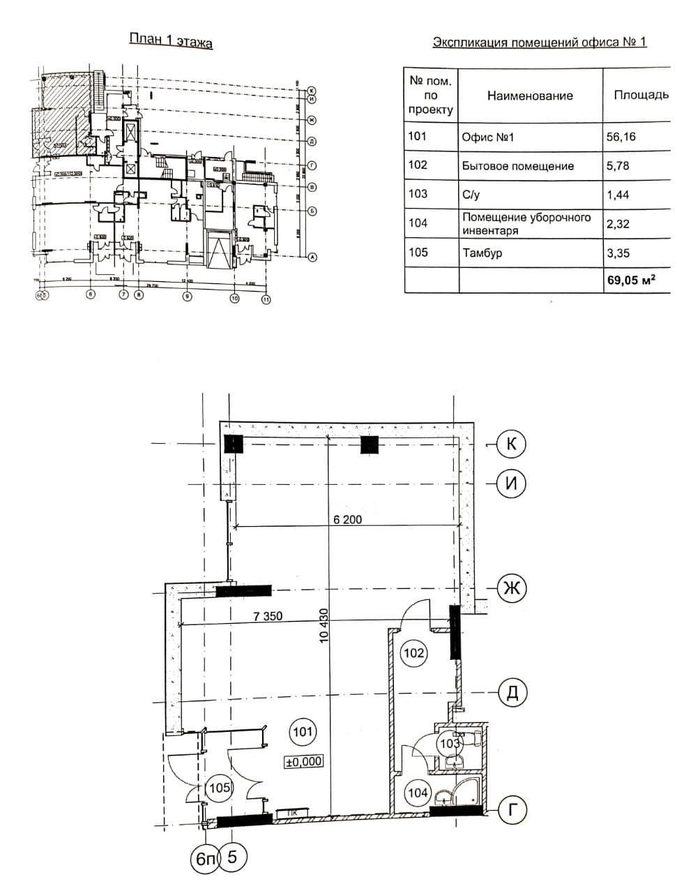
      Загальна площа: 69.05 кв.м

      Кімнат: 1

      Поверх: 1

      К-ть поверхів: 15

      Ексклюзивний продаж (переуступка) від власника комерційних приміщень в ЖК "Кристал"
      Площа: 69,05 кв.м.
      Ціна продажу: $ 1200 за кв.м.
      Операція: переуступка
      Об'єкт: нежитлове приміщення в ЖК "Кристал"
      Клас: бізнес
      Забудовник: ЖС-2
      Здача: I квартал 2021 року
      Адреса: м.Харків, ул.Молочная 56
      Поверховість: 1/15
      Розташування: червона лінія, інтенсивний трафік
      Стан: будівельний
      Планування: вільне, свій санвузол, висота стель 4 м
      Характеристики: окремий вхід, вiтрина
      Комунікації: вода і каналізація центральні, опалення автономне
      Застосування: магазин, салон, громадське харчування, офіс, стоматологія, нотаріат

      Надіслати скаргу

      Закрити
      Поскаржитися на об'єкт «ул. Молочная, 56 (г. Харьков, Червонозаводский район)»
      Ваш коментар:(Необов'язково)
      Ваша скарга буде надіслана ріелтору, що розмістив об'єкт, а також адміністрації сайту АФНУ.
      Ваше ім'я:
      (Обов'язково)
      Ваш e-mail для відповіді:
      (Обов'язково)

      Коментарі