Вхід на сайт

Ел. пошта:
Пароль:

Реєстрація на сайті

Призвіще: Область:
Ім'я: Населений пункт:
    По батькові: Номер телефону:
    Ел. пошта: Компанія:
      Пароль: Посада:
      Повторіть пароль: Рік початку роботи:
      Фото:
      З правилами розміщення об'єктів погоджуюсь

      Забули пароль?

      Вкажіть ел. пошту — ми надішлемо Вам новий пароль для входу
      Ел. пошта:

      Проблема на сайті

      Закрити
      Ваш e-mail:
      (необов'язково)
      Розкажіть нам, що сталось
      bcrielt.jpg

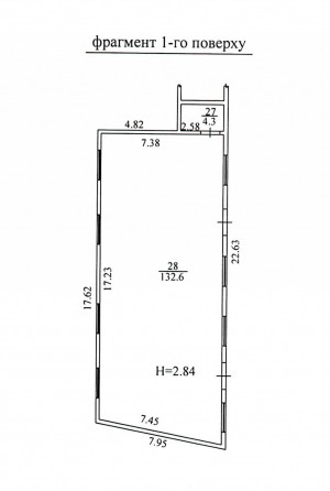
      пр. Московский, 259 — Продається офіс

      (г. Харьков, Фрунзенский район)

      105000 $

      Загальна площа: 137 кв.м

      Поверх: 1

      К-ть поверхів: 1

      Продажа! Готовый арендный бизнес 137 м2 (м. Дворец спорта)
      Офисное помещение Московский пр-т, 259:

      • площадь 137 м2
      • 1-й этаж
      • с действующим арендатором на ранее согласованных условиях
      • сумма продажи 105 000 USD

      Валовая доходность 10,24% при курсе 27,90 грн/1 USD и при текущем арендаторе.

      Характеристики объекта:
      • 2 входа
      • парковка во дворе
      • автономное электрическое отопление
      • все необходимые коммуникации

      Планировка:
      • кухонная зона
      • открытый зал
      • кабинет
      • санузел

      Преимущества:
      • 5 мин пешком до ст.м. Дворец Спорта (Маршала Жукова)
      • 2 мин пешком до супермаркета КЛАСС
      • 2 мин пешком до отделения Новой почты

      Остались вопросы?
      Пишите Viber / Telegram или звоните + 38 (095) 769-73-33, мы с радостью Вам ответим.
      компания stepREALTY

      Надіслати скаргу

      Закрити
      Поскаржитися на об'єкт «пр. Московский, 259 (г. Харьков, Фрунзенский район)»
      Ваш коментар:(Необов'язково)
      Ваша скарга буде надіслана ріелтору, що розмістив об'єкт, а також адміністрації сайту АФНУ.
      Ваше ім'я:
      (Обов'язково)
      Ваш e-mail для відповіді:
      (Обов'язково)

      Коментарі