Вхід на сайт

Ел. пошта:
Пароль:

Реєстрація на сайті

Призвіще: Область:
Ім'я: Населений пункт:
    По батькові: Номер телефону:
    Ел. пошта: Компанія:
      Пароль: Посада:
      Повторіть пароль: Рік початку роботи:
      Фото:
      З правилами розміщення об'єктів погоджуюсь

      Забули пароль?

      Вкажіть ел. пошту — ми надішлемо Вам новий пароль для входу
      Ел. пошта:

      Проблема на сайті

      Закрити
      Ваш e-mail:
      (необов'язково)
      Розкажіть нам, що сталось
      bcrielt.jpg

      ул. Рюмина, 2 — Продається квартира в новобудові

      (г. Николаев, Центральный район)

      58256 $

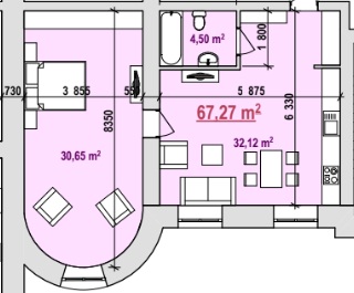
      Загальна площа: 66 кв.м

      Жила площа: 54 кв.м

      Площа кухні: 8 кв.м

      Кімнат: 2

      Поверх: 2

      К-ть поверхів: 4

      Продается квартира в новом ЖК Замок Наваль. Высокие потолки 3,5 м., новые коммуникации, отличные планировочные решения. Квартира продается под ремонт и с ремонтом.Автономное отопление, дух-тарифный электрический счетчик, водяной теплый пол. Дом сдан в эксплуатацию. Отличное меторасположения. В непосредственной близости находятся школа, детский сад, центральный рынок, магазины, кафе и банки. Не далеко расположена останова общественного транспорта.

      Надіслати скаргу

      Закрити
      Поскаржитися на об'єкт «ул. Рюмина, 2 (г. Николаев, Центральный район)»
      Ваш коментар:(Необов'язково)
      Ваша скарга буде надіслана ріелтору, що розмістив об'єкт, а також адміністрації сайту АФНУ.
      Ваше ім'я:
      (Обов'язково)
      Ваш e-mail для відповіді:
      (Обов'язково)

      Коментарі