Вхід на сайт

Ел. пошта:
Пароль:

Реєстрація на сайті

Призвіще: Область:
Ім'я: Населений пункт:
    По батькові: Номер телефону:
    Ел. пошта: Компанія:
      Пароль: Посада:
      Повторіть пароль: Рік початку роботи:
      Фото:
      З правилами розміщення об'єктів погоджуюсь

      Забули пароль?

      Вкажіть ел. пошту — ми надішлемо Вам новий пароль для входу
      Ел. пошта:

      Проблема на сайті

      Закрити
      Ваш e-mail:
      (необов'язково)
      Розкажіть нам, що сталось
      bcrielt.jpg

      ул. Капушанская — Продається квартира в новобудові

      (г. Ужгород, Новый район)

      40700 $

      Загальна площа: 74 кв.м

      Жила площа: 50 кв.м

      Площа кухні: 20 кв.м

      Кімнат: 2

      Поверх: 2

      К-ть поверхів: 4

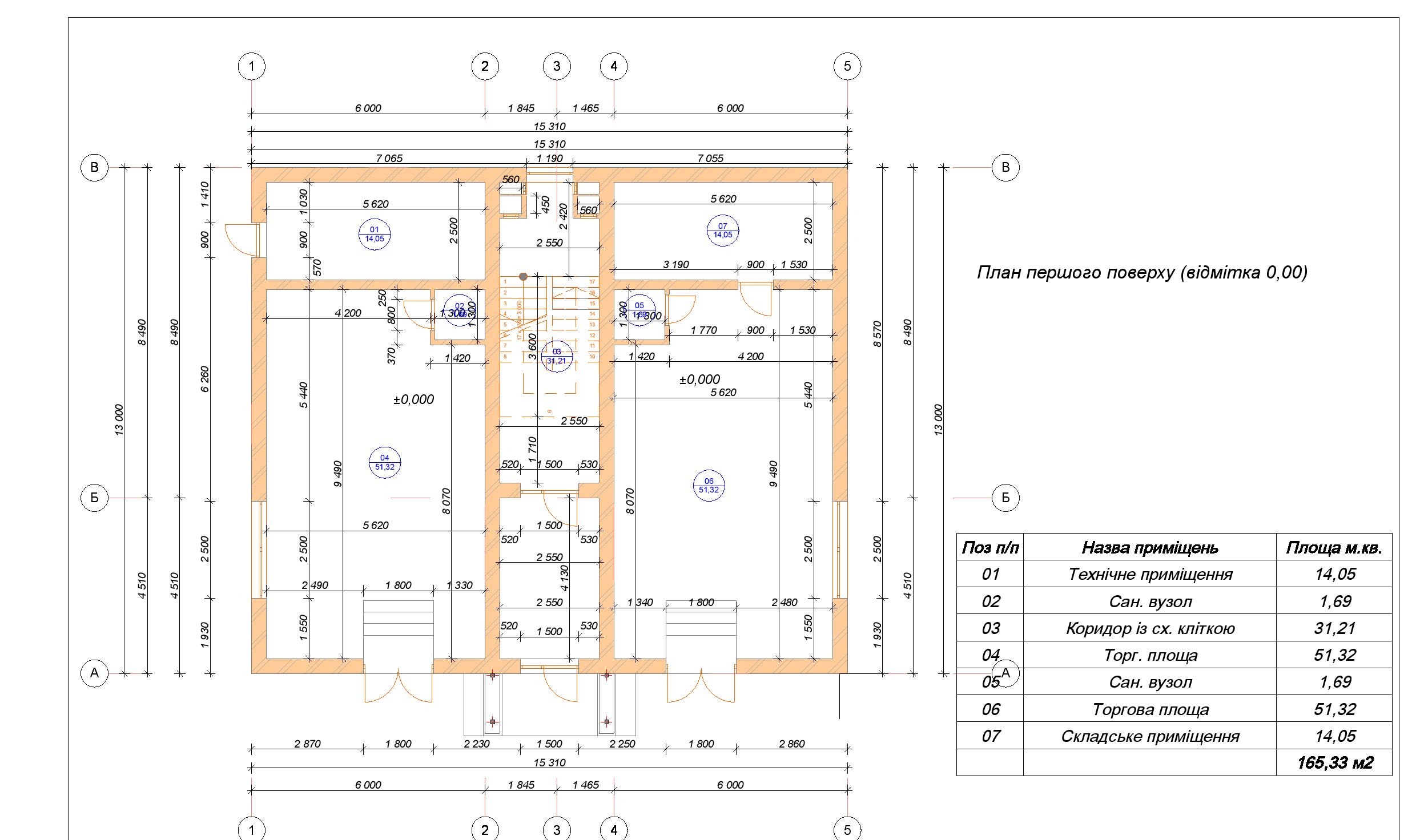
      Розпочато будівництво житлового будинку (6 квартир) з вбудованими приміщеннями комерційного призначення за адресою вулиця Перемоги. Будинок складається з 4-х поверхів. Цегла, під колони-монолітні залізобетонні, перекриття- збірне залізобетонне, покрівля- плоска, покриття-гідроізоляційна мембрана. Вікна євробрус із однокамерними склопакетами. Даховий утеплювач-мінвата у поліетиленових пакетах фірми "ISOVER". Автономне газове опалення, вода постійно, розводка світла. Влаштування прилеглої території з влаштуванням бруківки, дитячого майданчика та зелених насаджень в розрізі житлової частини будівлі згідно проекту. Ціна за квадрат 550 дол, комерція-800 дол. Площа квартир 74 м кв.

      Надіслати скаргу

      Закрити
      Поскаржитися на об'єкт «ул. Капушанская (г. Ужгород, Новый район)»
      Ваш коментар:(Необов'язково)
      Ваша скарга буде надіслана ріелтору, що розмістив об'єкт, а також адміністрації сайту АФНУ.
      Ваше ім'я:
      (Обов'язково)
      Ваш e-mail для відповіді:
      (Обов'язково)

      Коментарі