Вхід на сайт

Ел. пошта:
Пароль:

Реєстрація на сайті

Призвіще: Область:
Ім'я: Населений пункт:
    По батькові: Номер телефону:
    Ел. пошта: Компанія:
      Пароль: Посада:
      Повторіть пароль: Рік початку роботи:
      Фото:
      З правилами розміщення об'єктів погоджуюсь

      Забули пароль?

      Вкажіть ел. пошту — ми надішлемо Вам новий пароль для входу
      Ел. пошта:

      Проблема на сайті

      Закрити
      Ваш e-mail:
      (необов'язково)
      Розкажіть нам, що сталось
      bcrielt.jpg

      ул. Первомайская — Продається квартира

      (г. Кривой Рог, Центрально-Городской район)

      175000 $

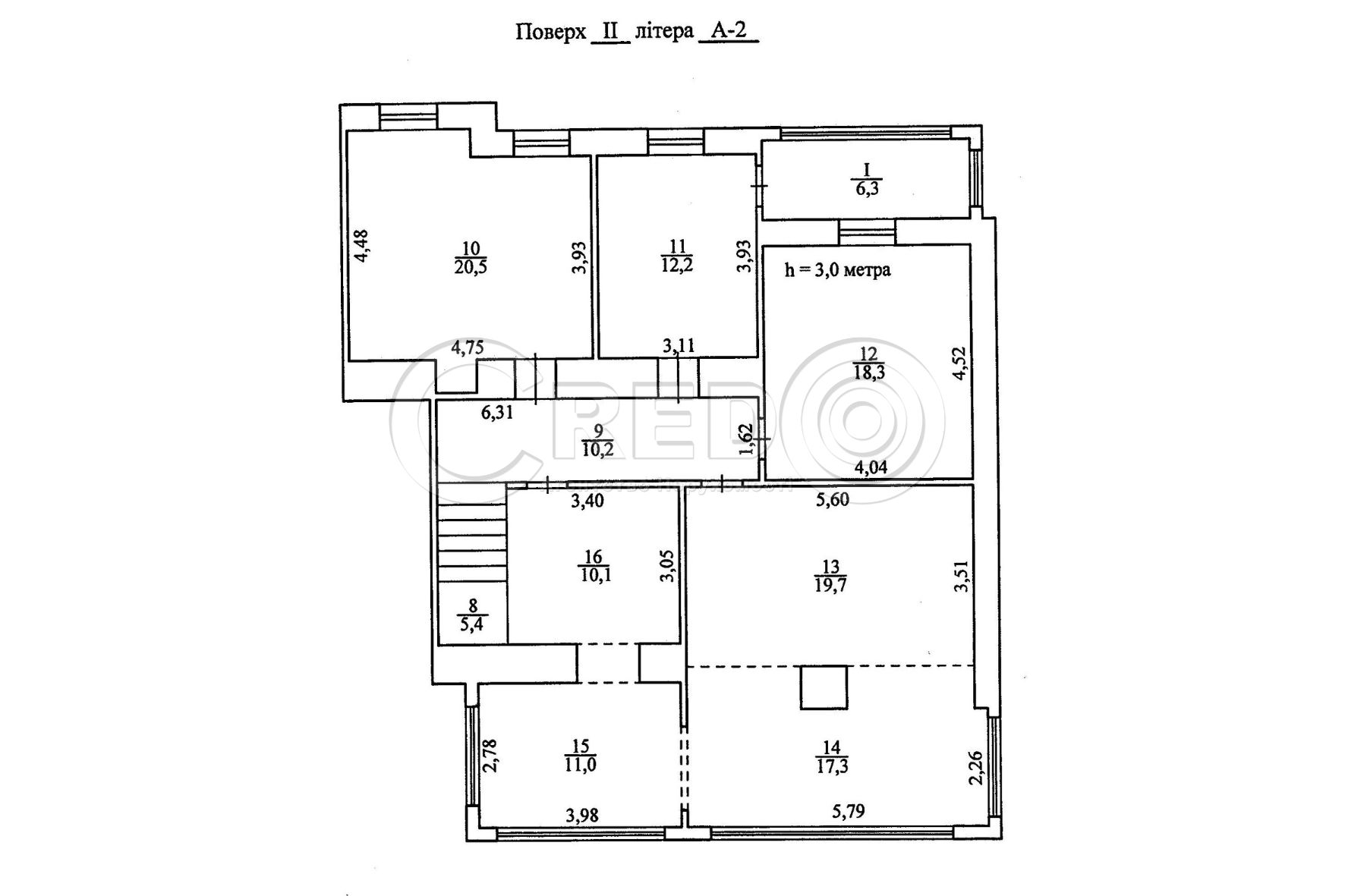
      Загальна площа: 197 кв.м

      Жила площа: 103 кв.м

      Площа кухні: 12 кв.м

      Кімнат: 6

      К-ть поверхів: 2

      Продаж дворівневої квартири в центрі міста, паркова зона вул. Великого Кобзаря (Першотравнева), Центрально-міський р-н.
      Пропонується до продажу унікальна двоповерхова квартира з окремим входом, власна огороджена територія дозволяє облаштувати зону відпочинку, барбекю або дитячий майданчик, що створює повне відчуття приватного будинку. Ідеальний варіант для тих, хто цінує комфорт, тишу та власний простір.

      Квартира розташована в будинку, який є історичною пам’яткою міста — поєднання архітектурної цінності, та особливої атмосфери. Будівля має унікальний характер та зберігає дух епохи, що підкреслює статус і престиж житла. Такі пропозиції з’являються на ринку вкрай рідко.
      Будинок знаходиться в центрі міста, поряд паркова зона та річка. Гарне місце для прогулянок, відпочинку та життя в гармонії з природою.

      Про об'єкт:
      - Загальна площа197кв.м.
      - Житлова103кв.м
      - На першому поверсі розташована кухня 12кв.м.
      - Дві просторі, світлі кімнати.
      - Санвузол та господарське приміщення.
      - Великі вікна забезпечують багато природного світла та відчуття простору.

      - Другий поверх відведений під зону відпочинку
      - Чотири затишні спальні кімнати, кабінет, гардеробна, санвузол та лоджія.
      - Продумане планування забезпечує максимальний комфорт для всієї родини.

      Комунікації:
      - Електроенергія
      - Газопостачання
      - Водопостачання та каналізація
      - Опалення

      Квартира поєднує в собі всі переваги приватного будинку та міської інфраструктури — чудовий вибір для комфортного життя.

      Ціна 175 000$ договірна

      За будь-якими питаннями за цією або схожими пропозиціями звертайтесь за номером телефону, де вам відповість наш ріелтор 098 985 09 08.

      Надіслати скаргу

      Закрити
      Поскаржитися на об'єкт «ул. Первомайская (г. Кривой Рог, Центрально-Городской район)»
      Ваш коментар:(Необов'язково)
      Ваша скарга буде надіслана ріелтору, що розмістив об'єкт, а також адміністрації сайту АФНУ.
      Ваше ім'я:
      (Обов'язково)
      Ваш e-mail для відповіді:
      (Обов'язково)

      Коментарі