Вхід на сайт

Ел. пошта:
Пароль:

Реєстрація на сайті

Призвіще: Область:
Ім'я: Населений пункт:
    По батькові: Номер телефону:
    Ел. пошта: Компанія:
      Пароль: Посада:
      Повторіть пароль: Рік початку роботи:
      Фото:
      З правилами розміщення об'єктів погоджуюсь

      Забули пароль?

      Вкажіть ел. пошту — ми надішлемо Вам новий пароль для входу
      Ел. пошта:

      Проблема на сайті

      Закрити
      Ваш e-mail:
      (необов'язково)
      Розкажіть нам, що сталось
      bcrielt.jpg

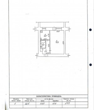
      ул. Вітрука, 53 — Продається квартира

      (г. Житомир, Королевский район)

      35000 $

      Загальна площа: 32.6 кв.м

      Жила площа: 17.9 кв.м

      Площа кухні: 4.8 кв.м

      Кімнат: 1

      Поверх: 3

      К-ть поверхів: 9

      Продаж 1 кімнатної малосімейки на польовій, 3 поверх 9 поверхового цегляного будинку, не кутова, вікна виходять у двір.
      Вся необхідна для комфортного життя інфраструктура в кроковій доступності.

      Надіслати скаргу

      Закрити
      Поскаржитися на об'єкт «ул. Вітрука, 53 (г. Житомир, Королевский район)»
      Ваш коментар:(Необов'язково)
      Ваша скарга буде надіслана ріелтору, що розмістив об'єкт, а також адміністрації сайту АФНУ.
      Ваше ім'я:
      (Обов'язково)
      Ваш e-mail для відповіді:
      (Обов'язково)

      Вам также могут подойти

      ул. Короленка, 4а (г. Житомир, Богунский район) - Продається квартира, 30000 $ - АФНУ

      Оновлено: 28 квітня

      Розміщено: 23 червня 2025

      Продається квартира

      2 кімн., площа 35.8/15.1/8.7, поверх 2/5

      г. Житомир, ул. Короленка, 4а

      30000 $

      Колеснікова Ірина

      Ріелтор ("НАДІЙНИЙ СВІТ")

      Продаж 2 кімнатної квартири в центрі
      2 поверх 5 поверхового цегляного будинку
      Загальна площа 35.8м²
      Кімнати невеликі, але окремі, не кутова.
      Стан - після будівельників, зроблена проводка і труби

      Детальніше

      ул. Лесі Українки, 4 (г. Житомир, Богунский район) - Продається квартира, 37000 $ - АФНУ

      Оновлено: 28 квітня

      Розміщено: 3 квітня

      Продається квартира

      1 кімн., площа 33/19.5/5, поверх 3/5

      г. Житомир, ул. Лесі Українки, 4

      37000 $

      Колеснікова Ірина

      Ріелтор ("НАДІЙНИЙ СВІТ")

      Продаж 1 кімнатної малосімейки з великою кімнатою 19.5м2, стан під ремонт. Квартира вільна від будь який обтяжень, без прописаних.

      Детальніше

      ул. Короленка, 4а (г. Житомир, Богунский район) - Продається квартира, 30000 $ - АФНУ

      Оновлено: 28 квітня

      Розміщено: 23 червня 2025

      Продається квартира

      2 кімн., площа 35.8/15.1/8.7, поверх 2/5

      г. Житомир, ул. Короленка, 4а

      30000 $

      Колеснікова Ірина

      Ріелтор ("НАДІЙНИЙ СВІТ")

      Продаж 2 кімнатної квартири в центрі
      2 поверх 5 поверхового цегляного будинку
      Загальна площа 35.8м²
      Кімнати невеликі, але окремі, не кутова.
      Стан - після будівельників, зроблена проводка і труби

      Детальніше

      Коментарі