Вхід на сайт

Ел. пошта:
Пароль:

Реєстрація на сайті

Призвіще: Область:
Ім'я: Населений пункт:
    По батькові: Номер телефону:
    Ел. пошта: Компанія:
      Пароль: Посада:
      Повторіть пароль: Рік початку роботи:
      Фото:
      З правилами розміщення об'єктів погоджуюсь

      Забули пароль?

      Вкажіть ел. пошту — ми надішлемо Вам новий пароль для входу
      Ел. пошта:

      Проблема на сайті

      Закрити
      Ваш e-mail:
      (необов'язково)
      Розкажіть нам, що сталось
      bcrielt.jpg

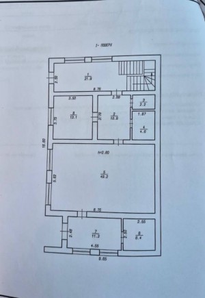
      ул. Лугова, 1 — Продається будинок

      (с. Копыстин, Хмельницкий район)

      145000 $

      Загальна площа: 339.4 кв.м

      Площа ділянки: 25 сот

      Кімнат: 4

      К-ть поверхів: 2

      С.Копистин, вул. Лугова 1, будинок , 2 поверхи + мансарда , площа 339,4кв.м, житлова 179. Ділянка 25 соток, кутова. Будинок побудований з цегли, панельне паереуриття, зроблені чорнові роботи, заведено світло, газ, септик, криниця з насосом. Котел одноконтурний, колонка. На ділянці є гараж на 2 авто, погріб-підвал, складські приміщення, майстерня, приміщення для світських тварин.

      Надіслати скаргу

      Закрити
      Поскаржитися на об'єкт «ул. Лугова, 1 (с. Копыстин, Хмельницкий район)»
      Ваш коментар:(Необов'язково)
      Ваша скарга буде надіслана ріелтору, що розмістив об'єкт, а також адміністрації сайту АФНУ.
      Ваше ім'я:
      (Обов'язково)
      Ваш e-mail для відповіді:
      (Обов'язково)

      Коментарі