Вхід на сайт

Ел. пошта:
Пароль:

Реєстрація на сайті

Призвіще: Область:
Ім'я: Населений пункт:
    По батькові: Номер телефону:
    Ел. пошта: Компанія:
      Пароль: Посада:
      Повторіть пароль: Рік початку роботи:
      Фото:
      З правилами розміщення об'єктів погоджуюсь

      Забули пароль?

      Вкажіть ел. пошту — ми надішлемо Вам новий пароль для входу
      Ел. пошта:

      Проблема на сайті

      Закрити
      Ваш e-mail:
      (необов'язково)
      Розкажіть нам, що сталось
      bcrielt.jpg

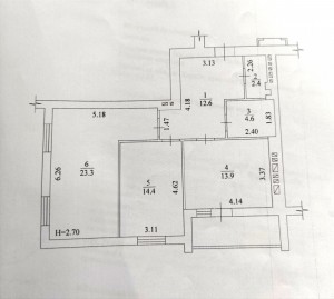
      пр. Московский, 270г — Продається квартира

      (г. Харьков, Орджоникидзевский район)

      45000 $

      Загальна площа: 74 кв.м

      Жила площа: 38 кв.м

      Площа кухні: 14 кв.м

      Кімнат: 2

      Поверх: 9

      К-ть поверхів: 9

      Продається простора 2-кімнатна квартира в новобудові ЖК Миру-3 від надійного забудовника ЖС-1
      Площа квартири 74 м², розташована на 9/9 поверсі. Є технічний поверх, що дає можливість облаштувати другий рівень для сучасного дизайну та зонування простору
      Зручне роздільне планування — максимум комфорту для вашої родини.
      З вікон відкривається приємний вид у двір, де облаштовано дитячий майданчик та є місця для паркування авто
      Будинок уже зданий в експлуатацію
      Підключене опалення, працює ліфт — можна одразу починати ремонт
      У квартирі вже встановлено:
      - металопластикові вікна
      - радіатори опалення
      - горизонтальна розводка опалення, встановлено індивідуальний лічильник - це реальна економія на комунальних платіжках
      Зручне розташування, поруч усе необхідне для комфортного життя: транспорт, магазини, школи, дитячі садки
      Ціна екв. 45 000 у.о — вигідна пропозиція на ринку!
      Не втрачайте шанс придбати якісне житло за гарною ціною
      Телефонуйте для детальної інформації та запису на перегляд!

      Надіслати скаргу

      Закрити
      Поскаржитися на об'єкт «пр. Московский, 270г (г. Харьков, Орджоникидзевский район)»
      Ваш коментар:(Необов'язково)
      Ваша скарга буде надіслана ріелтору, що розмістив об'єкт, а також адміністрації сайту АФНУ.
      Ваше ім'я:
      (Обов'язково)
      Ваш e-mail для відповіді:
      (Обов'язково)

      Вам также могут подойти

      ул. Корчагинцев, 9 (г. Харьков, Фрунзенский район) - Продається квартира, 38500 $ - АФНУ

      Оновлено: 23 березня

      Розміщено: 16 листопада 2025

      Продається квартира

      2 кімн., площа 47/29/7, поверх 5/9

      г. Харьков, ул. Корчагинцев, 9

      38500 $

      Горовая Ольга Владимировна

      Риелтор (АН Алые Паруса)

      Продається простора та дуже затишна 2-кімнатна квартира для комфортного сімейного життя
      Салтівка, 625-й мікрорайон
      Квартира розташована у теплому, доглянутому будинку на 5 поверсі 9-поверхівки.
      Вона світла, тепла та має особливу…

      Детальніше

      ул. Зерновая, 6/6 (г. Харьков, Червонозаводский район) - Продається квартира, 39000 $ - АФНУ

      Оновлено: 23 березня

      Розміщено: 27 січня

      Продається квартира

      4 кімн., площа 68.5/47.5/7, поверх 5/9

      г. Харьков, ул. Зерновая, 6/6

      39000 $

      Горовая Ольга Владимировна

      Риелтор (АН Алые Паруса)

      Продам простору 4-кімнатну квартиру, район Одеська, вулиця Зернова.
      Квартира розташована на зручному 5 поверсі 9-поверхового будинку.
      Загальна площа — 68,5 м². Функціональне планування, що ідеально підходить для великої родини або…

      Детальніше

      ул. Дарвина, 6 (г. Харьков, Киевский район) - Продається квартира, 45000 $ - АФНУ

      Оновлено: 23 березня

      Розміщено: 12 лютого

      Продається квартира

      3 кімн., площа 75/57/7, поверх 4/4

      г. Харьков, ул. Дарвина, 6

      45000 $

      Горовая Ольга Владимировна

      Риелтор (АН Алые Паруса)

      Унікальна 3-к квартира в самому серці Харкова, метро Бекетова в кількох хвилинах пішки!
      Локація, яку практично неможливо повторити:
      Сад Шевченка, ХНАТОБ, Дзеркальний струмінь
      Розвинена інфраструктура центру міста: парки, кафе, магазини,…

      Детальніше

      Коментарі