Вхід на сайт

Ел. пошта:
Пароль:

Реєстрація на сайті

Призвіще: Область:
Ім'я: Населений пункт:
    По батькові: Номер телефону:
    Ел. пошта: Компанія:
      Пароль: Посада:
      Повторіть пароль: Рік початку роботи:
      Фото:
      З правилами розміщення об'єктів погоджуюсь

      Забули пароль?

      Вкажіть ел. пошту — ми надішлемо Вам новий пароль для входу
      Ел. пошта:

      Проблема на сайті

      Закрити
      Ваш e-mail:
      (необов'язково)
      Розкажіть нам, що сталось
      bcrielt.jpg

      ул. Байкальская — Продається офіс

      (г. Кривой Рог, Дзержинский район)

      250000 $

      Загальна площа: 984 кв.м

      Кімнат: 11

      Поверх: 1

      К-ть поверхів: 1

      Пропонується до продажу комплекс із двох окремо розташованих офісних будівель на закритій території.
      Дві окремі юридичні адреси: вул. Каштанів, вул. Байкальська.
      Земельна ділянка 20соток. Огороджена, два в’їзди, автоматичні ворота, асфальтована, зона відпочинку.

      Технічні характеристики:
      - В офісах виконаний сучасний ремонт.
      - Обладнанні меблями, технікою та предметами інтер’єру.
      - Окремий вхід в кожний офіс.
      - Великий хол.
      - Санвузол.
      - Спортивна зала.
      - Зона відпочинку.
      - Бесідка.
      - Топочна.

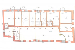
      Планування об’єкту :
      - Загальна площа забудови – 984.9кв.м.
      - Перша будівля 492.2кв.м.
      - Висота стелі – 2.80м.
      - Дві великих зали та 8 кабінетів
      - Друга будівля 492.7кв.м.
      - Висота стелі – 2.70м.
      - Простора зала та 11 кабінетів

      Комунікації:
      - Електроенергії 380V
      - Центральне водопостачання та каналізація
      - Бойлер.
      - Кондиціонери.
      - Твердопаливний котел
      - Газовий котел
      - Пожарна та охорона сигналізація

      Логістична розв’язка:
      - В центрі великого житлового масиву
      - Зручні під’їзні шляхи

      Продаж – 250 000$

      За будь-якими питаннями за цією або схожими пропозиціями звертайтесь за номером телефону, де вам відповість наш ріелтор 098 985 09 08.

      З повагою, команда АН Credo

      Надіслати скаргу

      Закрити
      Поскаржитися на об'єкт «ул. Байкальская (г. Кривой Рог, Дзержинский район)»
      Ваш коментар:(Необов'язково)
      Ваша скарга буде надіслана ріелтору, що розмістив об'єкт, а також адміністрації сайту АФНУ.
      Ваше ім'я:
      (Обов'язково)
      Ваш e-mail для відповіді:
      (Обов'язково)

      Коментарі