Вхід на сайт

Ел. пошта:
Пароль:

Реєстрація на сайті

Призвіще: Область:
Ім'я: Населений пункт:
    По батькові: Номер телефону:
    Ел. пошта: Компанія:
      Пароль: Посада:
      Повторіть пароль: Рік початку роботи:
      Фото:
      З правилами розміщення об'єктів погоджуюсь

      Забули пароль?

      Вкажіть ел. пошту — ми надішлемо Вам новий пароль для входу
      Ел. пошта:

      Проблема на сайті

      Закрити
      Ваш e-mail:
      (необов'язково)
      Розкажіть нам, що сталось
      bcrielt.jpg

      Миколи Світальського — Продається торгівельний майданчик

      (г. Кривой Рог, Жовтневый район)

      175000 $

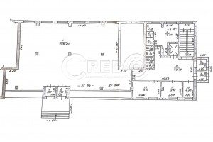
      Загальна площа: 814 кв.м

      Поверх: 1

      К-ть поверхів: 9

      Продаж продуктового магазину
      - Покровський район
      - вул.Миколи Світальського
      - зупинка "Молодіжна"
      - "червона лінія"

      Технічні характеристики:
      - перший поверх 9-ти поверхового житлового будинку
      - центральний та завантажувальний входи
      - приміщення в робочому станні
      - велика фасадна площа
      - збоку місце для парковки

      Планування об’єкту:
      - загальна площа - 814кв.м
      - перший поверх - 333кв.м
      - підвальне приіщення - 480кв.м

      Комунікації:
      - опалення центральне відрізане
      - центральне електропостачання 30кВт; 380Вт
      - центральне водопостачання, каналізація
      - пожежна, охорона сигналізації
      - кондиціонер

      Логістична розв’язка:
      - приміщення розташоване в великому спальному районі
      - поруч зупинки громадського транспорту
      - супермаркет "АТБ", "Варус", аптеки та безліч інших магазинів
      - великий автомобільний та пішохідний трафік

      В магазині діючі орендарі, це отримання доходу з першого дня володіння.
      Продаж 175 000у.о.

      За будь-якими питаннями за цією або іншими пропозиціями звертайтесь за номером телефону 067 696 16 51.
      З повагою, команда Credo!

      Надіслати скаргу

      Закрити
      Поскаржитися на об'єкт «Миколи Світальського (г. Кривой Рог, Жовтневый район)»
      Ваш коментар:(Необов'язково)
      Ваша скарга буде надіслана ріелтору, що розмістив об'єкт, а також адміністрації сайту АФНУ.
      Ваше ім'я:
      (Обов'язково)
      Ваш e-mail для відповіді:
      (Обов'язково)

      Вам также могут подойти

      ул. Космонавтов (г. Кривой Рог, Саксаганский район) - Продається торгівельний майданчик, 150000 $ - АФНУ

      Оновлено: 23 березня

      Розміщено: 25 липня 2019

      Продається торгівельний майданчик

      площа 753, поверх -/2

      г. Кривой Рог, ул. Космонавтов

      150000 $

      Літвинова Ірина Вікторівна

      Продаж окремої будівлі в Саксаганському р-ні, вул. Космонавтів, р-н "Вечірній"

      Про об'єкт:
      - Загальна площа 753.74кв.м.
      - Земельна ділянка 10 соток – кадастровий номер

      Особливості:
      - Високий автомобільний та пішохідний…

      Детальніше

      пр. Карла Маркса (г. Кривой Рог, Центрально-Городской район) - Продається торгівельний майданчик, 150000 $ - АФНУ

      Оновлено: 23 березня

      Розміщено: 1 березня 2024

      Продається торгівельний майданчик

      площа 242, поверх 2/5

      г. Кривой Рог, пр. Карла Маркса

      150000 $

      Літвинова Ірина Вікторівна

      Продаж приміщення в Центрально Міському районі,
      пр. Поштовий

      Про об’єкт:
      - приміщення розташоване на 2-му поверсі, окремої торгово-офісної будівлі.

      Планування об’єкту:
      - загальна площа: 242,3 кв.м.
      - основний зал -…

      Детальніше

      ул. Серафимовича (г. Кривой Рог, Долгинцевский район) - Продається торгівельний майданчик, 190000 $ - АФНУ

      Оновлено: 19 березня

      Розміщено: 27 травня 2025

      Продається торгівельний майданчик

      площа 688, поверх 1/1

      г. Кривой Рог, ул. Серафимовича

      190000 $

      Літвинова Ірина Вікторівна

      Продаж будівлі по вул. Серафимовича (ринок Довгинцівський)

      Технічні характеристики:
      - загальна площа - 688,7кв.м.
      - одноповерхова цегляна будівля на три фасадні входи з великим торговим залом, колонного типу
      - додатковий…

      Детальніше

      Коментарі