Вхід на сайт

Ел. пошта:
Пароль:

Реєстрація на сайті

Призвіще: Область:
Ім'я: Населений пункт:
    По батькові: Номер телефону:
    Ел. пошта: Компанія:
      Пароль: Посада:
      Повторіть пароль: Рік початку роботи:
      Фото:
      З правилами розміщення об'єктів погоджуюсь

      Забули пароль?

      Вкажіть ел. пошту — ми надішлемо Вам новий пароль для входу
      Ел. пошта:

      Проблема на сайті

      Закрити
      Ваш e-mail:
      (необов'язково)
      Розкажіть нам, що сталось
      bcrielt.jpg

      ул. 200 лет Кривого Рога — Продається торгівельний майданчик

      (г. Кривой Рог, Саксаганский район)

      50000 $

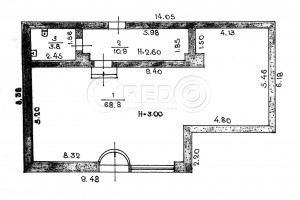
      Загальна площа: 83 кв.м

      Поверх: 1

      К-ть поверхів: 1

      Продаж нежитлової будівлі пр.200-річчя Кривого Рогу
      Нежитлова будівля розташована над проїзною частиною.
      Земельна ділянка 1,5 соток, кадастровий номер.

      Технічні характеристики:
      - Є можливість збільшити будівлю чи розташувати літній майданчик
      - Приміщення має два входи
      - Має добрий стан
      - Кондиціонер

      Планування об’єкту :
      - Загальна площа – 83.5кв.м.,
      - Торгівельна зала 68.8кв.м.,
      - кабінет, комора, санвузол
      - Висота стелі 3.00м

      Комунікації:
      - Електроенергія 5кВт
      - Центральне водопостачання та каналізація
      - Кондиціонер

      Локація:
      - Поряд великий житловий масив.
      - Великий автомобільний трафік

      Продаж – 50 000 $ договірна.

      За будь-якими питаннями за цією або схожими пропозиціями звертайтесь за номером телефону, де вам відповість наш ріелтор 098 985 09 08.

      З повагою, команда АН Credo

      Надіслати скаргу

      Закрити
      Поскаржитися на об'єкт «ул. 200 лет Кривого Рога (г. Кривой Рог, Саксаганский район)»
      Ваш коментар:(Необов'язково)
      Ваша скарга буде надіслана ріелтору, що розмістив об'єкт, а також адміністрації сайту АФНУ.
      Ваше ім'я:
      (Обов'язково)
      Ваш e-mail для відповіді:
      (Обов'язково)

      Вам также могут подойти

      ул. Корнейчука (г. Кривой Рог, Саксаганский район) - Продається торгівельний майданчик, 59000 $ - АФНУ

      Оновлено: 6 січня

      Розміщено: 16 серпня 2021

      Продається торгівельний майданчик

      площа 113, поверх 1/9

      г. Кривой Рог, ул. Корнейчука

      59000 $

      Літвинова Ірина Вікторівна

      Продається нежитлове приміщення по вул. І.Авраменка (Корнійчука).

      Технічні характеристики:
      - Приміщення розташоване на 1/9-ти пов. будинку.
      - Загальна площа 113,8кв.м.,

      Планування об’єкту: великий хол, кабінети, кухня, підсобне приміщення, сан/вузол.

      Комунікації:…

      Детальніше

      ул. Космонавтов (г. Кривой Рог, Саксаганский район) - Продається торгівельний майданчик, 45000 $ - АФНУ

      Оновлено: 25 грудня 2025

      Розміщено: 6 жовтня 2025

      Продається торгівельний майданчик

      площа 150, поверх 1/2

      г. Кривой Рог, ул. Космонавтов

      45000 $

      Літвинова Ірина Вікторівна

      Продаж магазину на "Вечірньому".
      - вул.Космонавтів,13
      - Саксаганський район

      Технічні характеристики:
      - перший поверх 3-х поверхової окремо розтошованої будівлі
      - "червона лінія"
      - приміщення в робочому стані
      - вітражний фасад…

      Детальніше

      ул. Корнейчука (г. Кривой Рог, Саксаганский район) - Продається торгівельний майданчик, 59000 $ - АФНУ

      Оновлено: 6 січня

      Розміщено: 16 серпня 2021

      Продається торгівельний майданчик

      площа 113, поверх 1/9

      г. Кривой Рог, ул. Корнейчука

      59000 $

      Літвинова Ірина Вікторівна

      Продається нежитлове приміщення по вул. І.Авраменка (Корнійчука).

      Технічні характеристики:
      - Приміщення розташоване на 1/9-ти пов. будинку.
      - Загальна площа 113,8кв.м.,

      Планування об’єкту: великий хол, кабінети, кухня, підсобне приміщення, сан/вузол.

      Комунікації:…

      Детальніше

      Коментарі