Вхід на сайт

Ел. пошта:
Пароль:

Реєстрація на сайті

Призвіще: Область:
Ім'я: Населений пункт:
    По батькові: Номер телефону:
    Ел. пошта: Компанія:
      Пароль: Посада:
      Повторіть пароль: Рік початку роботи:
      Фото:
      З правилами розміщення об'єктів погоджуюсь

      Забули пароль?

      Вкажіть ел. пошту — ми надішлемо Вам новий пароль для входу
      Ел. пошта:

      Проблема на сайті

      Закрити
      Ваш e-mail:
      (необов'язково)
      Розкажіть нам, що сталось
      bcrielt.jpg

      ул. Маршака — Продається квартира

      (г. Кривой Рог, Терновской район)

      13000 $

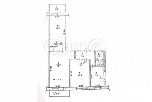
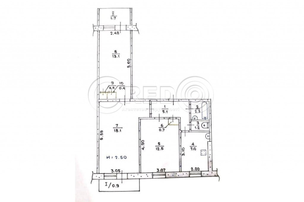
      Загальна площа: 63 кв.м

      Жила площа: 43 кв.м

      Площа кухні: 7 кв.м

      Кімнат: 3

      Поверх: 2

      К-ть поверхів: 9

      Пропонуємо до продажу 3кімнатну квартиру у Тернівському
      районі. Зручне розташування вулиця Ботанічна,6 ( раніше Маршака) відносно транспортної розв'язки мікрорайону.
      А також поряд одна із принад нашого міста Криворізький
      ботанічний сад НАН України.

      Про об'єкт:
      - 2 поверх 9типоверхового будинку.
      - загальна площа 63,1 м.кв.
      - житлова площа 43,7м.кв.
      - без маленьких кімнат : 18,1 + 13,1 + 12,5 м.кв.
      - маємо балкон та лоджію, засклені.

      Планування об'єкту:
      - квартира двостороння, не кутова.
      - вітальня облаштована кондиціонером.
      - одна спальня ізольована.
      - друга має вхід із вітальні.
      - санвузол роздільний з бойлером.
      - вільний доступ до квартири без "перегородок".

      Особливості об'єкту:
      - будинок розташовано на розі вулиць Маршака, Доватора,
      Адмірала Головка.
      - віддалена територія від проїжджої частини вулиці
      гарно упорядкована зеленими насадженнями.
      - приємний краєвид з вікон.
      - чисте, акуратне подвір'я.
      - закритий під'їзд з тихою ліфтовою системою.
      - перший поверх займають комерційні об'єкти,
      а саме магазини, клініка, аптека, банкомат.

      Локація:
      - будинок рівновіддалений, 2-3 хвилини, від зупинок
      громадського транспорту : 228 автобус, 231, 15, 16, 18, 83.
      - поряд Пологове відділення 7-ї міськлікарні.
      - повний спектр магазинів популярних торгових марок
      АТБ, Варус, Єва, Карамелька та інші, аптеки, кафе, ринок,
      відділення Київстар, нотаріальна контора.
      - загальноосвітні школи № 110 та № 116, дитячий садок №23.

      Ціна на сьогодні 13 000$
      За будь-якими питаннями за цією або схожими пропозиціями звертайтесь за номером телефону, де вам відповість наш ріелтор 067 982 17 19.

      Надіслати скаргу

      Закрити
      Поскаржитися на об'єкт «ул. Маршака (г. Кривой Рог, Терновской район)»
      Ваш коментар:(Необов'язково)
      Ваша скарга буде надіслана ріелтору, що розмістив об'єкт, а також адміністрації сайту АФНУ.
      Ваше ім'я:
      (Обов'язково)
      Ваш e-mail для відповіді:
      (Обов'язково)

      Вам также могут подойти

      ул. Ильичевская (г. Кривой Рог, Саксаганский район) - Продається квартира, 12000 $ - АФНУ

      Оновлено: 28 листопада

      Розміщено: 28 травня

      Продається квартира

      2 кімн., площа 50/28/5, поверх 2/2

      г. Кривой Рог, ул. Ильичевская

      12000 $

      Літвинова Ірина Вікторівна

      Продаж 2-х кімнатної квартири, Саксаганський район, вул.Гетьманська, Дзержинка.

      Про об’єкт:

      - Квартира розташована на 2/2 поверхового будинку.
      - Загальна площа 50,3кв.м.,
      - Житлова 28.2кв.м., всі кімнати окремі,
      - Кухня 5кв.м.,…

      Детальніше

      Військове містечко-1 (г. Кривой Рог, Саксаганский район) - Продається квартира, 12000 $ - АФНУ

      Оновлено: 30 вересня

      Розміщено: 11 вересня

      Продається квартира

      2 кімн., площа 53/28/7, поверх 4/5

      г. Кривой Рог, Військове містечко-1

      12000 $

      Літвинова Ірина Вікторівна

      Пропонуємо до продажу 2кімнатну квартиру "чеського" планування за адресою Військове містечко-1.
      Розташування між житломасивами Гданцівка, Кірпічний,
      Нижня Антонівка та річкою Інгулець.
      Назву залишили але функцію військового об'єкту
      мікрорайон давно не…

      Детальніше

      ул. Рокоссовского (г. Кривой Рог, Саксаганский район) - Продається квартира, 12500 $ - АФНУ

      Оновлено: 17 грудня

      Розміщено: 14 жовтня

      Продається квартира

      2 кімн., площа 44/27/5, поверх 3/3

      г. Кривой Рог, ул. Рокоссовского

      12500 $

      Літвинова Ірина Вікторівна

      Продаж 2-кімнатної квартири — 96 квартал, вул. Рокосовського!
      Пропонуємо простору «сталінку» в цегляному будинку — ідеальний варіант для тих, хто цінує надійність, висоту стель і зручне розташування.

      Про об’єкт:
      Поверх:…

      Детальніше

      Коментарі