Вхід на сайт

Ел. пошта:
Пароль:

Реєстрація на сайті

Призвіще: Область:
Ім'я: Населений пункт:
    По батькові: Номер телефону:
    Ел. пошта: Компанія:
      Пароль: Посада:
      Повторіть пароль: Рік початку роботи:
      Фото:
      З правилами розміщення об'єктів погоджуюсь

      Забули пароль?

      Вкажіть ел. пошту — ми надішлемо Вам новий пароль для входу
      Ел. пошта:

      Проблема на сайті

      Закрити
      Ваш e-mail:
      (необов'язково)
      Розкажіть нам, що сталось
      bcrielt.jpg

      без комісії Конякіна, 13 — Здається торгівельний майданчик

      (г. Луцк)

      300 грн. за кв.м.

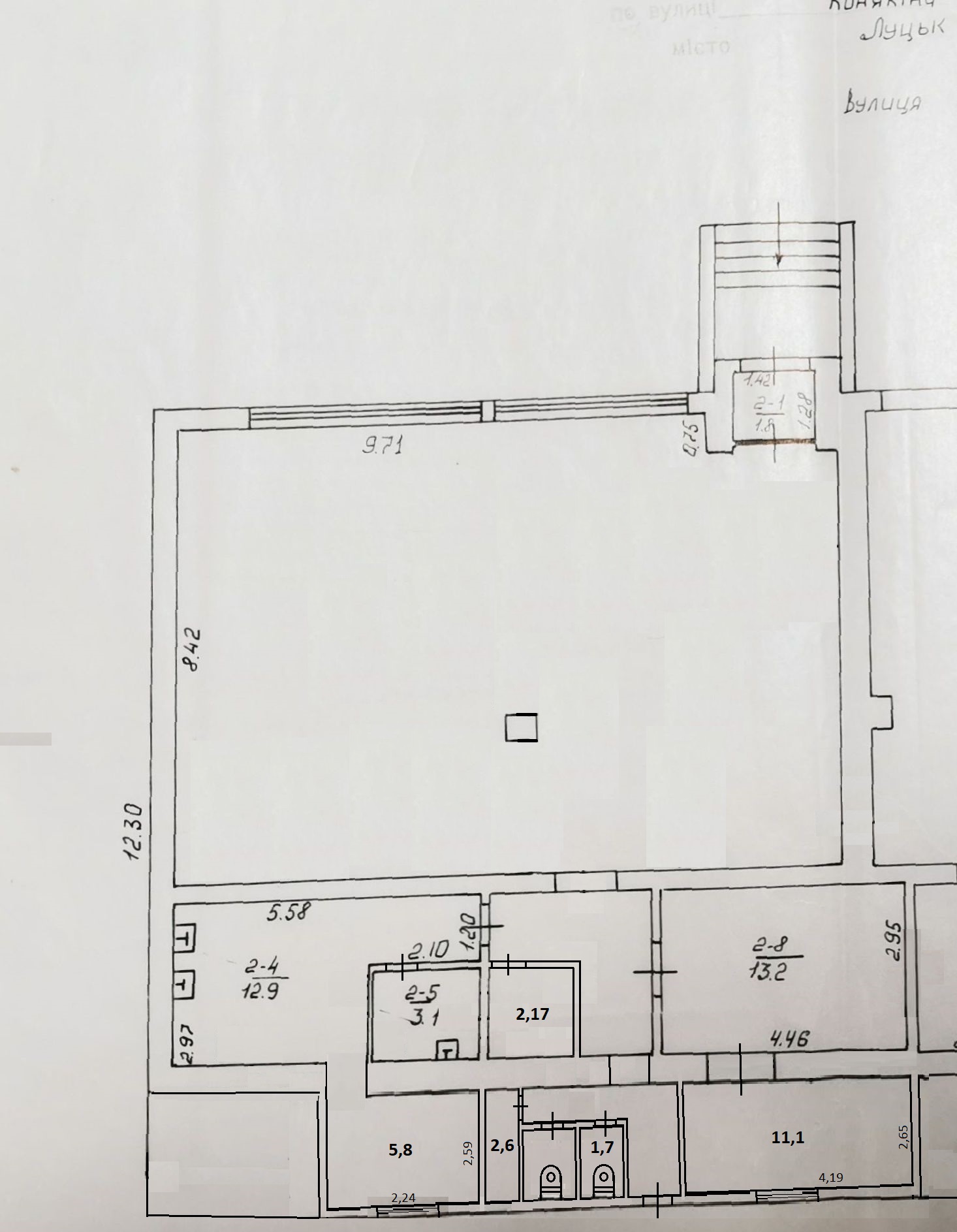
      Загальна площа: 173 кв.м

      Поверх: 1

      Оренда торговельного приміщення по вул. Конякіна, 13

      м. Луцьк, вул. Конякіна, 13

      • Площа – 173 кв.м.
      • Відкрите планування основного залу площею 100 кв.м.
      • Ремонт
      • Великі вікна
      • Можливість розміщення вивіски
      • Окремий фасадний та пожежний вхід
      • Активний автомобільний трафік


      Комунікації: е-потужність до 50 кВт., інтернет, охоронна сигналізація, пожежна охорона, кондиціонер та вентиляція, санвузол.

      Ідеально під розміщення магазину, офісу, аптеки, відділення фінансово-кредитної установи!

      Ціна оренди – 300 грн./кв.м. або 52 000 грн. за весь об’єкт. Без комісії!

      Відео - https://www.youtube.com/watch?v=xMF-8cKFmLM

      Контактна особа – Данкін Олександр
      тел. моб. +38 067 332 0 911


      www.atlanta.lutsk.ua
      https://t.me/ CPAtlanta (наш телеграм-канал)
      просп.Грушевського, 30, м.Луцьк.

      Дивіться також інші наші оголошення.

      Надіслати скаргу

      Закрити
      Поскаржитися на об'єкт «Конякіна, 13 (г. Луцк)»
      Ваш коментар:(Необов'язково)
      Ваша скарга буде надіслана ріелтору, що розмістив об'єкт, а також адміністрації сайту АФНУ.
      Ваше ім'я:
      (Обов'язково)
      Ваш e-mail для відповіді:
      (Обов'язково)

      Вам также могут подойти

      Супутника, 14а (г. Луцк) - Здається торгівельний майданчик, 400 грн. за кв.м. - АФНУ

      Оновлено: 1 серпня

      Розміщено: 1 серпня

      Здається торгівельний майданчик

      площа 40, поверх 1/-

      г. Луцк, Супутника, 14а

      400 грн. за кв.м. без комісії

      Данкін Олександр Олександрович

      керівник відділу комерційної нерухомості (Компанія "Атланта Нерухомість")

      Оренда комерції 40 кв.м в р-н вул. Львівської!

      Розташування: м.Луцьк, вул. Супутника, 14а в районі вул. Львівській, поряд Городецька, Левітана та Даньшина. Парк, дитячий майданчик, зупинки громадського транспорту, магазини, офіси.…

      Детальніше

      Супутника, 14а (г. Луцк) - Здається торгівельний майданчик, 400 грн. за кв.м. - АФНУ

      Оновлено: 1 серпня

      Розміщено: 1 серпня

      Здається торгівельний майданчик

      площа 40, поверх 1/-

      г. Луцк, Супутника, 14а

      400 грн. за кв.м. без комісії

      Данкін Олександр Олександрович

      керівник відділу комерційної нерухомості (Компанія "Атланта Нерухомість")

      Оренда комерції 40 кв.м в р-н вул. Львівської!

      Розташування: м.Луцьк, вул. Супутника, 14а в районі вул. Львівській, поряд Городецька, Левітана та Даньшина. Парк, дитячий майданчик, зупинки громадського транспорту, магазини, офіси.…

      Детальніше

      Коментарі