Вхід на сайт

Ел. пошта:
Пароль:

Реєстрація на сайті

Призвіще: Область:
Ім'я: Населений пункт:
    По батькові: Номер телефону:
    Ел. пошта: Компанія:
      Пароль: Посада:
      Повторіть пароль: Рік початку роботи:
      Фото:
      З правилами розміщення об'єктів погоджуюсь

      Забули пароль?

      Вкажіть ел. пошту — ми надішлемо Вам новий пароль для входу
      Ел. пошта:

      Проблема на сайті

      Закрити
      Ваш e-mail:
      (необов'язково)
      Розкажіть нам, що сталось
      bcrielt.jpg

      ул. Есенина — Продається торгівельний майданчик

      (г. Кривой Рог, Дзержинский район)

      125000 $

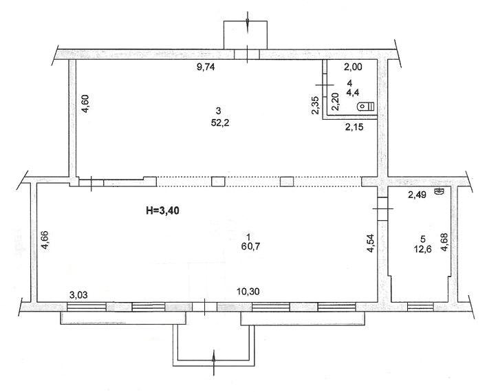
      Загальна площа: 130 кв.м

      Поверх: 1

      К-ть поверхів: 3

      Продаж магазину на "96 квартал"
      - вул.Д.Дудаева, 4
      - Металургійний район

      Про об’єкт:
      - перший поверх 3-х поверхового будинку
      - з окремим входом
      - магазин в гарному стані
      - парковка

      Планування об’єкту:
      - загальна площа - 130 кв.м
      - торгівельний зал - 113 кв.м
      - Н = 3,40 м
      - санвузол
      - підсобне приміщення.

      Комунікації:
      - центральне електропостачання 5 кВт;
      - центральне водопостачання, каналізація
      - центральне опалення
      - кондиціювання
      - пожарна та охоронна системи
      - додатковий вхід.

      Логістична розв’язка:
      - розташоване приміщення на "96 кварталі"
      - поряд безліч кафе та магазинів
      - напроти станція швидкісного трамваю
      - пішохідний та проїздний трафік.

      Продаж 125 000 у.е.

      За будь-якими питаннями за цією або схожими пропозиціями звертайтесь за номером телефону 067 696 16 51.
      З повагою, команда Credo!

      Надіслати скаргу

      Закрити
      Поскаржитися на об'єкт «ул. Есенина (г. Кривой Рог, Дзержинский район)»
      Ваш коментар:(Необов'язково)
      Ваша скарга буде надіслана ріелтору, що розмістив об'єкт, а також адміністрації сайту АФНУ.
      Ваше ім'я:
      (Обов'язково)
      Ваш e-mail для відповіді:
      (Обов'язково)

      Вам также могут подойти

      Оновлено: вчора

      Розміщено: 6 серпня

      Продається торгівельний майданчик

      площа 222, поверх 1/5

      г. Кривой Рог, ул. Харитонова

      115000 $

      Літвинова Ірина Вікторівна

      Продаж магазину вул.П.Калнишевського,5
      - Центрально Міський район
      - поруч пл. Визволення

      Технічні характеристики:
      - перший поверх 5-ти поверхового житлового будинку
      - "червона лінія"
      - приміщення під ремонт
      - кутове
      -…

      Коментарі