Вхід на сайт

Ел. пошта:
Пароль:

Реєстрація на сайті

Призвіще: Область:
Ім'я: Населений пункт:
    По батькові: Номер телефону:
    Ел. пошта: Компанія:
      Пароль: Посада:
      Повторіть пароль: Рік початку роботи:
      Фото:
      З правилами розміщення об'єктів погоджуюсь

      Забули пароль?

      Вкажіть ел. пошту — ми надішлемо Вам новий пароль для входу
      Ел. пошта:

      Проблема на сайті

      Закрити
      Ваш e-mail:
      (необов'язково)
      Розкажіть нам, що сталось
      bcrielt.jpg

      без комісії Ушинського, 5/1 — Продається квартира

      (г. Киев, Соломенский район)

      42500 $

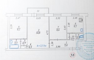
      Загальна площа: 50 кв.м

      Жила площа: 32 кв.м

      Площа кухні: 6 кв.м

      Кімнат: 3

      Поверх: 5

      К-ть поверхів: 5

      Продається 3-кімнатна квартира загальною площею 50м2 на 5 поверсі 5-поверхового ЦЕГЛЯНОГО будинку вул. Ушинського, 5, корпус 1 прямо навпроти Радіоринку. Будинок знаходиться в тихому зеленому місці у дворі поруч зі школою, дитячим садом, магазинами. Чисте парадне з кодовим замком. Планування суміжно-роздільне. Санвузол роздільний.
      Квартира - під ремонт. Добре піддається переплануванню - всередині квартири всі стіни не є несучими. Повний простір для дизайнерських фантазій. Паркетна дошка на підлозі - цілком актуальна - потрібно тільки пошліфувати і покрити лаком. Не кутова, у середині будинку. Дах будинку минулого року ремонтувався. Два власники - обидва в Києві. Зайвих податків немає. Документи в порядку. Поруч - 5 хвилин станція міської електрички «Караваєві Дачі» та інший транспорт. 10 хвилин транспортом до м. «Шулявська» або «Вокзальна»

      Надіслати скаргу

      Закрити
      Поскаржитися на об'єкт «Ушинського, 5/1 (г. Киев, Соломенский район)»
      Ваш коментар:(Необов'язково)
      Ваша скарга буде надіслана ріелтору, що розмістив об'єкт, а також адміністрації сайту АФНУ.
      Ваше ім'я:
      (Обов'язково)
      Ваш e-mail для відповіді:
      (Обов'язково)

      Коментарі