Вхід на сайт

Ел. пошта:
Пароль:

Реєстрація на сайті

Призвіще: Область:
Ім'я: Населений пункт:
    По батькові: Номер телефону:
    Ел. пошта: Компанія:
      Пароль: Посада:
      Повторіть пароль: Рік початку роботи:
      Фото:
      З правилами розміщення об'єктів погоджуюсь

      Забули пароль?

      Вкажіть ел. пошту — ми надішлемо Вам новий пароль для входу
      Ел. пошта:

      Проблема на сайті

      Закрити
      Ваш e-mail:
      (необов'язково)
      Розкажіть нам, що сталось
      bcrielt.jpg

      Петлюри Симона — Продається офіс

      (г. Полтава, Октябрьский район)

      120000 $

      Загальна площа: 93.5 кв.м

      Кімнат: 2

      Поверх: 1

      К-ть поверхів: 5

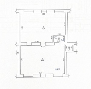
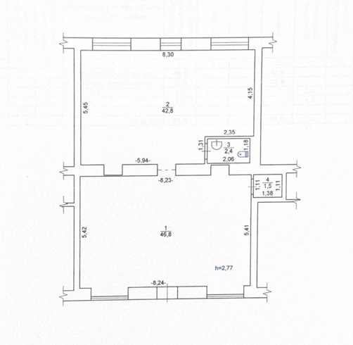
      Пропонується до продажу нежиле приміщення в жилому будинку загальною площею- 93,4 м²

      Основні характеристики:
      - місцерозташування: район зупинки ОЦЕВУМ
      - поверх: 1-й з виходом на фасадну частину будівлі
      - загальна площа: 93,4 м²

      Планування приміщення:
      - зал № 1: 46,8 м²
      - зал № 2: 42,8 м²
      - санітарний вузол
      - 2 вікна з фасадним виходом
      - окремий вхід з фасаду

      Інженерні комунікації:
      - всі комунікації централізовані

      Цільове призначення:
      - приміщення підходить для розміщення:
      -- офісу
      -- медичної клініки
      -- торгового об'єкта

      Комерційні умови:

      Вартість: 120 000 доларів США
      Додатково: послуги агентства нерухомості - 3%

      Контактна інформація 0 6 6 9 7 6 6 0 9 0

      Для отримання додаткової інформації та організації огляду звертайтесь за вказаними контактами.

      Надіслати скаргу

      Закрити
      Поскаржитися на об'єкт «Петлюри Симона (г. Полтава, Октябрьский район)»
      Ваш коментар:(Необов'язково)
      Ваша скарга буде надіслана ріелтору, що розмістив об'єкт, а також адміністрації сайту АФНУ.
      Ваше ім'я:
      (Обов'язково)
      Ваш e-mail для відповіді:
      (Обов'язково)

      Вам также могут подойти

      Н. Сотни (г. Полтава, Ленинский район) - Продається офіс, 120000 $ - АФНУ

      Оновлено: 24 вересня

      Розміщено: 13 серпня 2024

      Продається офіс

      9 кімн., площа 164, поверх 1/-

      г. Полтава, Н. Сотни

      120000 $

      Остапченко Александр Степанович

      соучредитель (Агентство недвижимости "Альянс риэлти" Полтава)

      Продаж офісного приміщення на Подолі по вул. Н. Сотні (зуп. Оптика, р-н маг. АТБ) з окремим входом з фасаду будинку, загальною площею 164 м2 на 9 кабінетів
      Характеристики:
      -1 поверх,…

      Детальніше

      Коментарі