Вхід на сайт

Ел. пошта:
Пароль:

Реєстрація на сайті

Призвіще: Область:
Ім'я: Населений пункт:
    По батькові: Номер телефону:
    Ел. пошта: Компанія:
      Пароль: Посада:
      Повторіть пароль: Рік початку роботи:
      Фото:
      З правилами розміщення об'єктів погоджуюсь

      Забули пароль?

      Вкажіть ел. пошту — ми надішлемо Вам новий пароль для входу
      Ел. пошта:

      Проблема на сайті

      Закрити
      Ваш e-mail:
      (необов'язково)
      Розкажіть нам, що сталось
      bcrielt.jpg

      без комісії центральна — Продається будинок

      (с. Коваловка, Полтавский район)

      55000 $

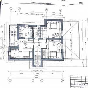
      Загальна площа: 300 кв.м

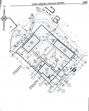
      Площа ділянки: 23 сот

      Кімнат: 5

      К-ть поверхів: 2

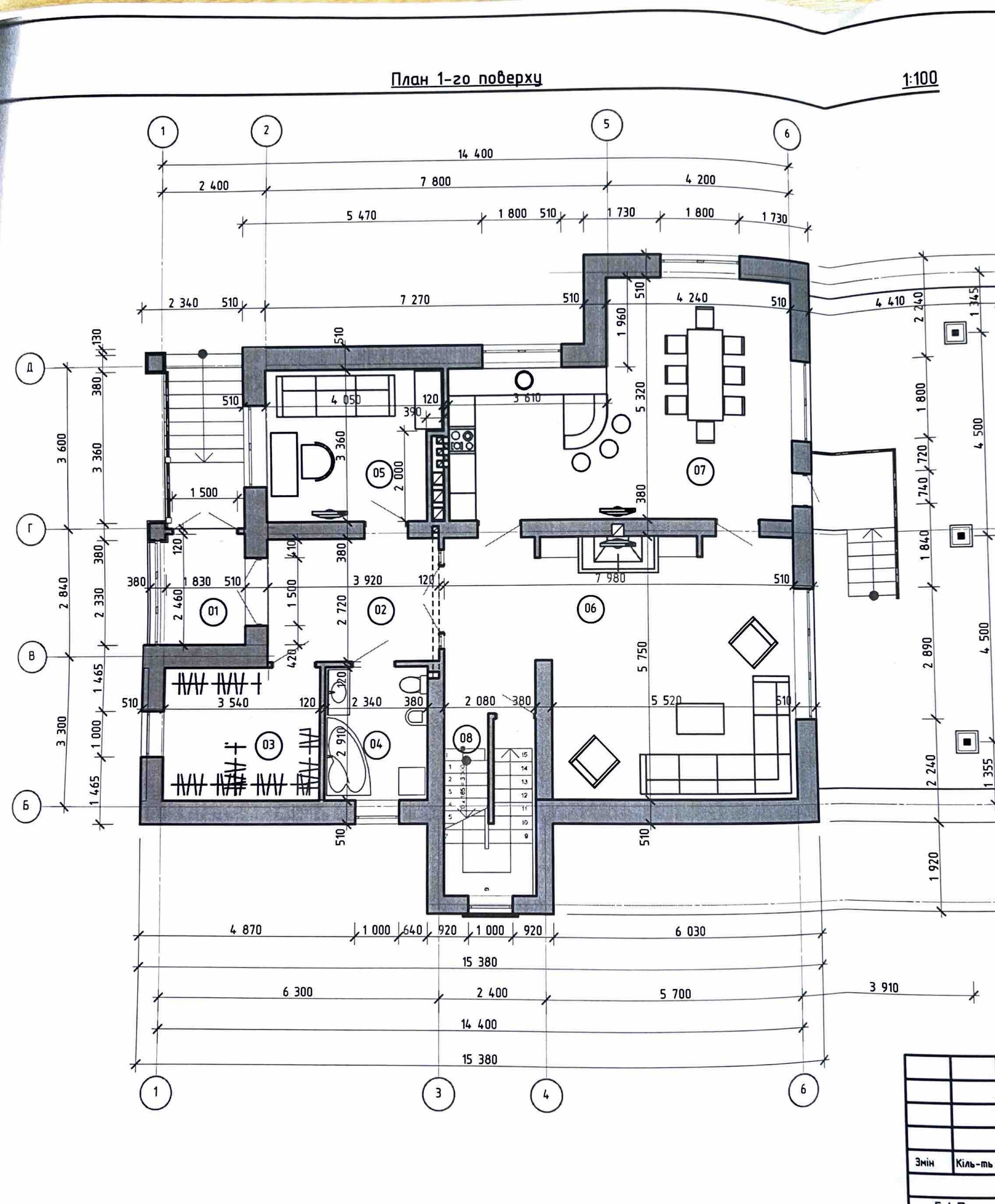
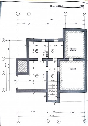
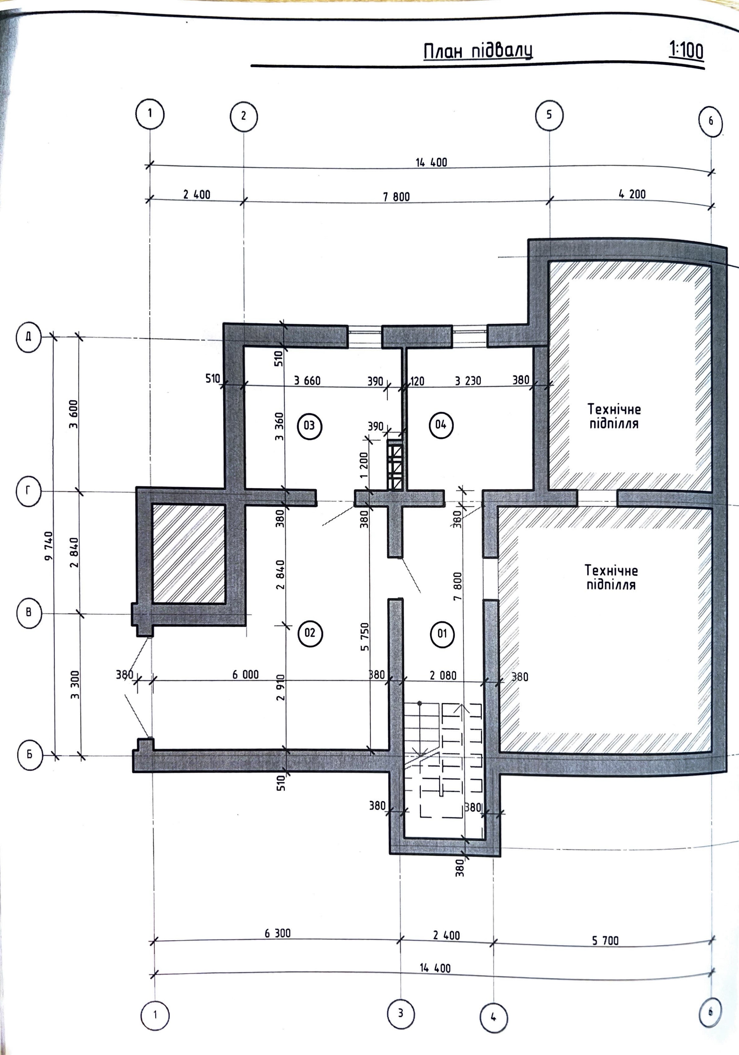
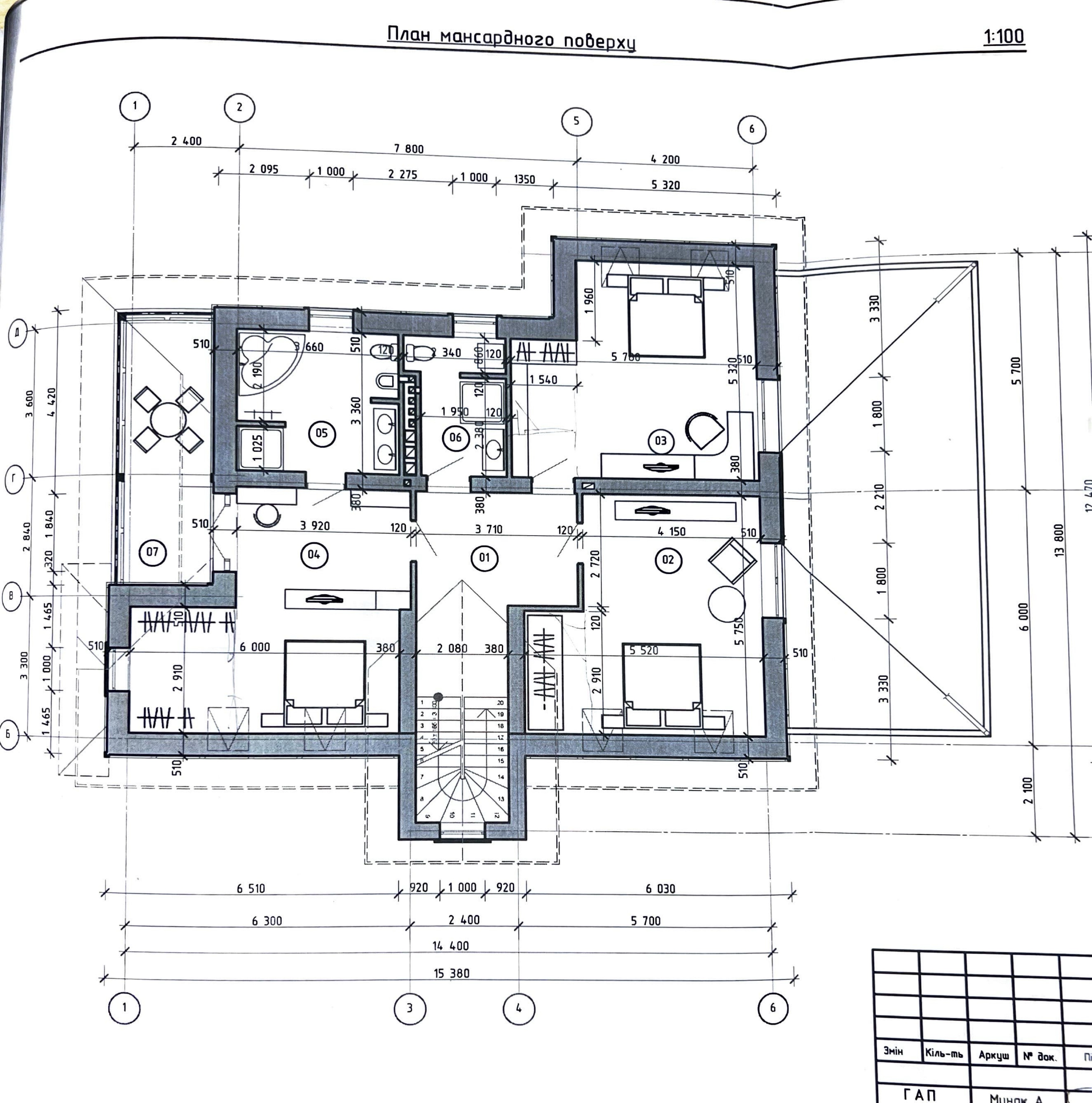
      Пропонується земельна ділянка площею 23 сотки з недобудованим будинком загальною площею 300 м². Будинок сучасний і міцний, включає один поверх, підвал та мансардний поверх. Встановлені вікна та двері, проте всередині без оздоблення, що дозволяє облаштувати його на свій смак.

      На території також розташовані два ангари для зберігання зерна або сільськогосподарської техніки, а також сарай для будь-яких інших потреб. Ділянка повністю огороджена, з воротами та зручним заїздом з двох сторін.

      Цей об'єкт чудово підходить для фермерів, які шукають можливість поєднати проживання з веденням бізнесу.

      Запрошуємо на перегляд!

      Надіслати скаргу

      Закрити
      Поскаржитися на об'єкт «центральна (с. Коваловка, Полтавский район)»
      Ваш коментар:(Необов'язково)
      Ваша скарга буде надіслана ріелтору, що розмістив об'єкт, а також адміністрації сайту АФНУ.
      Ваше ім'я:
      (Обов'язково)
      Ваш e-mail для відповіді:
      (Обов'язково)

      Коментарі