Вхід на сайт

Ел. пошта:
Пароль:

Реєстрація на сайті

Призвіще: Область:
Ім'я: Населений пункт:
    По батькові: Номер телефону:
    Ел. пошта: Компанія:
      Пароль: Посада:
      Повторіть пароль: Рік початку роботи:
      Фото:
      З правилами розміщення об'єктів погоджуюсь

      Забули пароль?

      Вкажіть ел. пошту — ми надішлемо Вам новий пароль для входу
      Ел. пошта:

      Проблема на сайті

      Закрити
      Ваш e-mail:
      (необов'язково)
      Розкажіть нам, що сталось
      bcrielt.jpg

      ул. Есенина — Здається торгівельний майданчик

      (г. Кривой Рог, Дзержинский район)

      35000 грн.

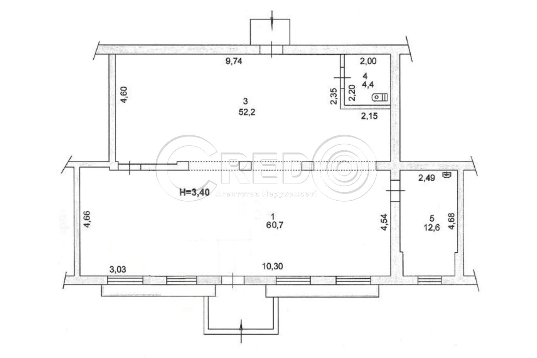
      Загальна площа: 130 кв.м

      Поверх: 1

      К-ть поверхів: 3

      Оренда приміщення вул. Д.Дудаева (Єсеніна) "96 квартал"

      Про об’єкт:
      - перший поверх 3-х поверхового будинку
      - розташований над проїзною частиною
      - окремий вхід

      Планування об’єкту:
      - загальна площа - 130 кв.м
      - торгівельний зал - 113 кв.м
      - Н = 3,40 м
      - санвузол
      - підсобне приміщення

      Комунікації:
      - центральне електропостачання 5 кВт;
      - центральне водопостачання, каналізація
      - центральне опалення
      - кондиціювання
      - пожарна та охоронна системи
      - додатковий вхід.

      Логістична розв’язка:
      - розташоване приміщення на "96 кварталі"
      - поряд станція швидкісного трамваю
      - пішохідний та проїздний трафік.

      Оренда 35 000грн + ком.послуги
      Послуга агенції 50%

      За будь-якими питаннями за цією або схожими пропозиціями звертайтесь за номером телефону 067 696 16 51.
      З повагою, команда Credo!

      Надіслати скаргу

      Закрити
      Поскаржитися на об'єкт «ул. Есенина (г. Кривой Рог, Дзержинский район)»
      Ваш коментар:(Необов'язково)
      Ваша скарга буде надіслана ріелтору, що розмістив об'єкт, а також адміністрації сайту АФНУ.
      Ваше ім'я:
      (Обов'язково)
      Ваш e-mail для відповіді:
      (Обов'язково)

      Вам также могут подойти

      ул. Косиора (г. Кривой Рог, Дзержинский район) - Продається торгівельний майданчик, 25000 $ - АФНУ

      Оновлено: 6 січня

      Розміщено: 22 листопада 2021

      Продається торгівельний майданчик

      площа 30, поверх 1/5

      г. Кривой Рог, ул. Косиора

      25000 $

      Літвинова Ірина Вікторівна

      Продаж магазину на "Соцмісті"
      - Металургійний район
      - вул. Соборності

      Розташування:
      -район " Соцмісто"
      -розташоване по "червоній лінії"
      -зупинка " Плавальний басейн"

      Техничні характиристики:
      - вбудований в 1 поверх 5-ти…

      Детальніше

      ул. Вокзальная (г. Кривой Рог, Дзержинский район) - Здається торгівельний майданчик, 22000 грн. - АФНУ

      Оновлено: 26 листопада 2025

      Розміщено: 5 серпня 2025

      Здається торгівельний майданчик

      площа 52, поверх 1/5

      г. Кривой Рог, ул. Вокзальная

      22000 грн.

      Літвинова Ірина Вікторівна

      Оренда магазину вул. Вокзальна
      - район з.д.вокзал "Червона"
      - Металургійний район
      - "червона лінія"

      Про об’єкт:
      - загальна площа - 52,6кв.м
      - торгівельна зала - 35,9кв.м
      - висота стелі -…

      Детальніше

      пр. Металлургов (г. Кривой Рог, Дзержинский район) - Продається торгівельний майданчик, 29000 $ - АФНУ

      Оновлено: 26 грудня 2025

      Розміщено: 7 жовтня 2025

      Продається торгівельний майданчик

      площа 54, поверх 1/5

      г. Кривой Рог, пр. Металлургов

      29000 $

      Літвинова Ірина Вікторівна

      Продаж приміщення пр. Металургів
      Нежитлове приміщення вільного призначення над проїзною частиною.

      Технічні характеристики:
      - Приміщення в доброму стані
      - Стіни під фарбування
      - На підлозі кахель
      - Встановлені ролети
      -…

      Детальніше

      Коментарі